Last updated on · ⓘ How we make our floor plans

This design is a single-level modern farmhouse with a bold central porch axis, generous outdoor living, and a clean, efficient interior layout sized for real life rather than magazines.
The façade pairs crisp vertical board-and-batten siding in white with warm timber posts and beams. A steep front gable with large black-framed windows crowns the composition, flanked by lower shed roofs that stretch out to protect the wraparound porches.
Roofing is standing-seam metal in a dark finish, giving a sharp contemporary edge and excellent durability. Simple wall-mounted barn lights and slim black railings keep the architecture calm, modern, and just a bit dramatic.
These plans are current design drafts. They are prepared for download as printable PDF sheets, ready for redlining, daydreaming, or both at once.
- Total area: Approx. 2,400 sq ft footprint (60 ft × 40 ft, including porches and decks)
- Bedrooms: 4
- Bathrooms: 2
- Floors: 1
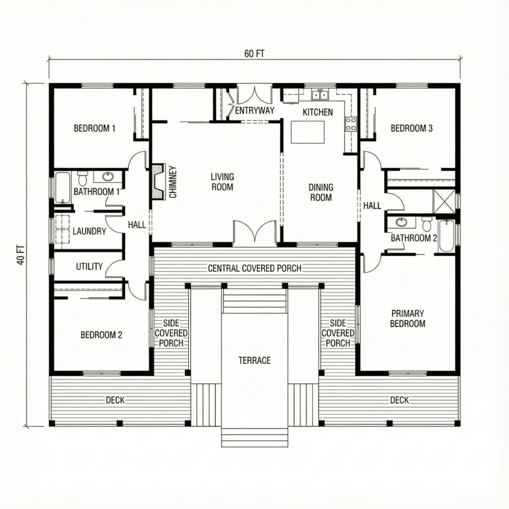
Main Floor – 60 ft × 40 ft


The main floor stretches 60 feet wide and 40 feet deep, forming a broad rectangle with a strong central spine. Public spaces occupy the middle, opening directly to a wide covered porch and terrace, while bedroom wings anchor both ends.
Outdoor rooms wrap the front with a central covered porch, twin side porches, and decks at each wing—plenty of excuses to own more outdoor furniture than strictly necessary.
The entryway sits at the center of the top side, leading straight into the living and dining core. The living room is on the left of this axis, with a chimney set against the interior wall and French doors spilling out to the central covered porch.
The dining room mirrors it on the right, sharing the same porch frontage and visual connection to the terrace. The kitchen tucks behind the dining room near the entry, forming a compact and efficient work zone with direct access to the heart of the house.
The left wing holds secondary bedrooms and the hardworking service spaces. A short hall links Bedroom 1 at the upper left corner with Bathroom 1, the Laundry, and the Utility room. Bedroom 2 occupies the lower left corner and opens to the left-side deck, ideal for night-owl readers or early-bird coffee drinkers.
The right wing is a calm mirror with a bit of an upgrade. Bedroom 3 sits at the upper right, adjacent to a hall serving Bathroom 2. The Primary Bedroom claims the lower right corner, opening onto the right-side deck and enjoying quick access to both the hall bath and the outdoor living areas.
Along the front, a Central Covered Porch runs across the middle of the plan, linking directly to the living and dining rooms. Side Covered Porches on each wing connect the bedroom halls to the outdoors. A broad Terrace with central steps extends the porch down to the yard, while full-width Decks at each wing complete the outdoor ensemble.
- Entryway
- Living Room with chimney
- Dining Room
- Kitchen
- Primary Bedroom
- Bedroom 1
- Bedroom 2
- Bedroom 3
- Bathroom 1
- Bathroom 2
- Laundry
- Utility Room
- Halls (left and right)
- Central Covered Porch
- Side Covered Porches (2)
- Terrace
- Decks (2, left and right)
Aerial View

Aerial view of this U-shape barndominium gives a clear look at the overall house design. You can see the roof structure and design as well as the overall layout.
Table of Contents




