Last updated on · ⓘ How we make our floor plans

This is a two-story modern house design with a compact footprint, clear zoning, and a crisp split between shared living areas below and private bedrooms above.

The facade blends contemporary barnhouse and Scandinavian-inspired design. A steep front gable gives the elevation its punch, while large dark-framed windows add rhythm and depth. Vertical wood cladding is paired with smooth light stucco for a clean material mix. The roof is finished in standing-seam metal, sharp, tidy, and very hard to argue with.
These are floor plan drafts, and they are available for download as a printable PDF. Handy for planning, reviewing, and pointing at the kitchen with great seriousness.
- Total area: 1,598 sq ft
- Bedrooms: 3
- Bathrooms: 2
- Floors: 2
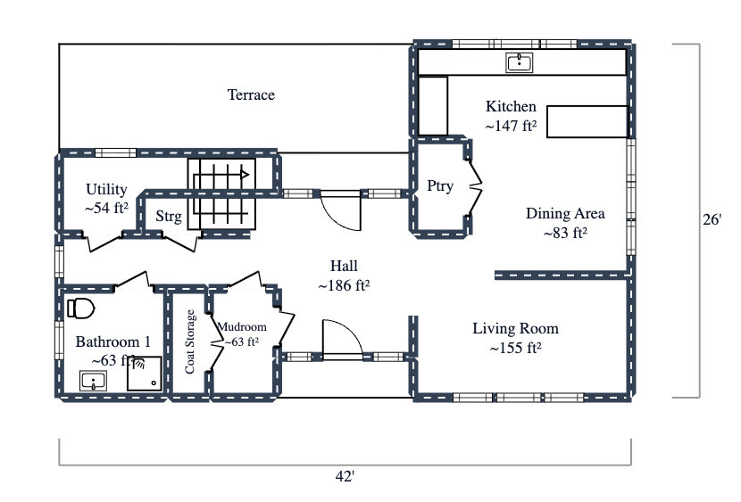
Main Floor

The main floor includes 758 sq ft. The layout is organized around a central hall of 187 sq ft. Service rooms sit to one side, while the kitchen, dining area, and living room shape the main social zone. A terrace is also shown on the draft plan, though its area is not provided.
- Hall: 187 sq ft
- Living Room: 156 sq ft
- Kitchen: 148 sq ft
- Dining Area: 84 sq ft
- Bathroom 1: 64 sq ft
- Mudroom: 64 sq ft
- Utility: 55 sq ft
- Pantry (Ptry): 29 sq ft
It is a practical floor. The mudroom and utility spaces help keep the daily clutter in check, which is always a heroic act.
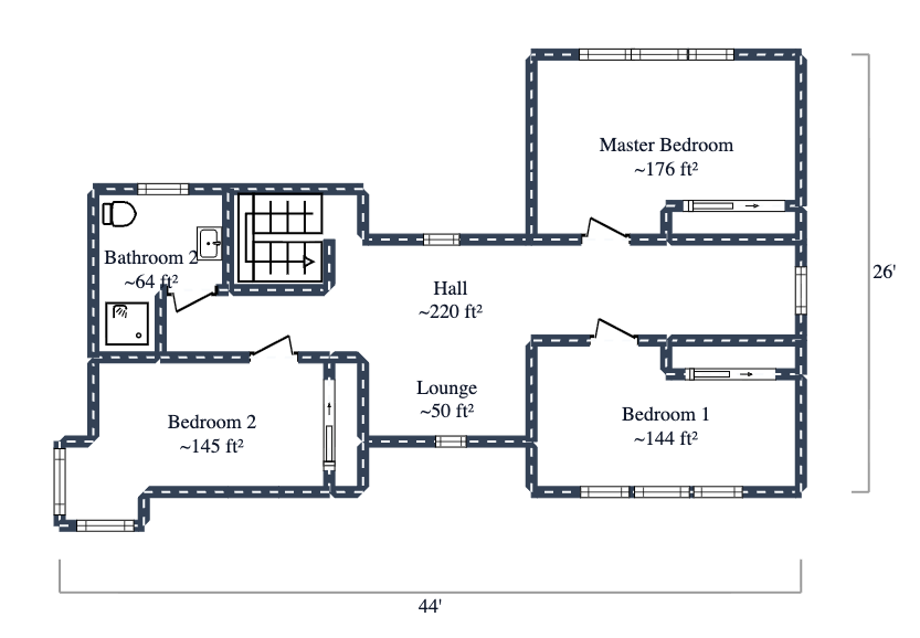
Upper Floor

The upper floor provides 840 sq ft. A large 220 sq ft hall anchors the level and links all three bedrooms, the lounge, and the second bathroom. The arrangement is simple, readable, and easy to move through. Nicely behaved, in plan form.
- Hall: 220 sq ft
- Master Bedroom: 176 sq ft
- Bedroom 2: 145 sq ft
- Bedroom 1: 144 sq ft
- Bathroom 2: 64 sq ft
- Lounge: 50 sq ft
This level is dedicated to rest and retreat. The lounge adds a small bonus space for reading, relaxing, or escaping the living room soundtrack downstairs.
We have more facade options of this design:
Yellow and Bronze Siding

The big shift is the siding: the facade now wears a sunny yellow cladding paired with rich bronze panels, and the whole front suddenly feels warmer, sharper, and a bit more cheeky. That yellow vertical siding lights up the tall gabled volume, while the bronze section on the left gives the composition weight and a moody counterpoint.
Those new tones make the black-framed windows pop even more, especially the stacked picture window on the right and the projecting corner window on the left. Against the dark metal roof and trim, the yellow-and-bronze palette turns the clean geometry into the star of the show—still crisp and modern, just with better stage lighting.
Gray and Deep Blue Siding

The biggest change is the siding palette: grey and deep blue now split the facade into crisp, graphic volumes. The deep blue horizontal cladding gives the left wing a grounded, weighty feel, while the grey vertical panels sharpen the taller central and front-gabled sections.
It is a smart contrast—like the house put on a better jacket.
That color swap makes the facade’s geometry read louder and cleaner. The steep gable, boxy corner window, and recessed entry all pop more against the darker skin, while the black-framed windows look extra precise and a bit moodier.
Even the warm wood door stands out more, quietly stealing the show.
White and Black Siding

The biggest change is the white-and-black siding, and it gives the facade a much sharper split personality—in a good way. Crisp white vertical cladding now brightens the central and left portions, while deep black siding wraps the tall front gable, turning it into the star of the show with a bit of moody drama.
That contrast makes the geometry pop harder: the black-framed windows feel bolder, the projecting window box reads more sculptural, and the recessed wood entry looks warmer by comparison. Paired with the steep standing-seam roof, the updated facade lands somewhere between modern barn and very well-dressed raven.
Gray and Forest Green Siding

The big change is the siding palette: grey and forest green now split the facade into crisp, playful volumes. Forest green takes over the tall gabled front, giving it a bold, woodsy punch, while grey cools down the flatter and recessed sections so the composition feels sharper and more graphic.
That swap makes the black-framed windows pop harder and gives the natural wood entry a warmer glow, like it knows it is the favorite child. The contrast also boosts the house’s modern-rustic character, with the vertical cladding looking extra taut and the whole front reading cleaner, moodier, and a bit more dashing.
White and Red Siding

The big shift is the new white-and-red siding palette, and it totally rewires the facade. Crisp white vertical siding now brightens the left volume, while the red horizontal siding wraps the tall gabled mass and center entry bay, giving the front a snappy barn-meets-modern attitude.
That color swap makes the geometry pop harder: the steep roofline feels sharper, the black-framed windows look bolder, and the recessed wood entry gets a warmer spotlight. Even the little box window on the left looks more dramatic now—like it knows it’s in a good outfit.
Pin this for later:



Table of Contents




