Last updated on · ⓘ How we make our floor plans

This is a single-story, three-bedroom house design with a clean central hall, balanced room wings, and a straightforward 1,854 sq ft layout. It is practical, tidy, and pleasantly free of floor plan drama.

The facade presents a modern farmhouse composition with a strong front-facing gable. Brick clads the entry mass, while dark vertical siding wraps the side sections. Large black-framed windows give the front elevation a crisp edge. The roof is a light standing-seam metal system, simple and sharp.
These floor plan drafts are prepared for review and planning use. They are also available for download as a printable PDF, which is much nicer than squinting at a screen during a family debate.
- Total area: 1,854 sq ft
- Bedrooms: 3
- Bathrooms: 2
- Floors: 1
Main Floor

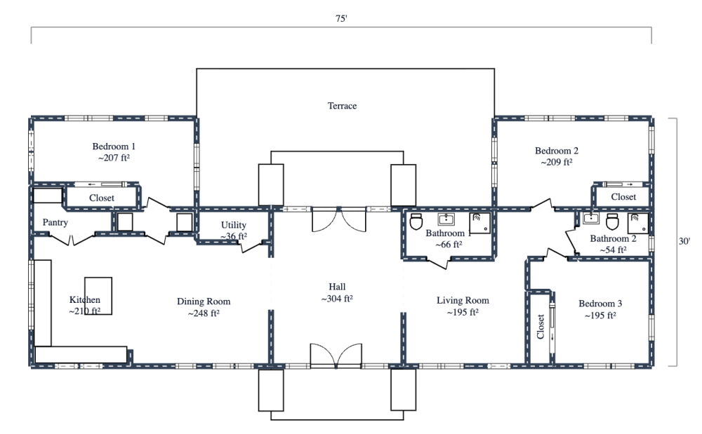
The main floor contains the full 1,854 sq ft of living space. The layout is organized around a large central hall. The shared living spaces occupy the center and left side. The bedrooms are split across both ends for better privacy. A rear terrace sits off the middle of the plan, though its area is not specified.
The Hall is the core of the plan at 304 sq ft. It links the front entry to the main rooms and rear access. It is generous, so nobody has to perform awkward doorway choreography.
- Bedroom 1: 207 sq ft
- Bedroom 2: 209 sq ft
- Bedroom 3: 195 sq ft
- Bathroom 1: 66 sq ft
- Bathroom 2: 54 sq ft
- Kitchen: 210 sq ft
- Dining Room: 248 sq ft
- Living Room: 195 sq ft
- Pantry: 43 sq ft
- Utility: 36 sq ft
- Hall: 304 sq ft
Bedroom 1 is placed on the left side of the home and measures 207 sq ft. It sits near the kitchen zone and includes a closet, with no separate closet area listed.
Bedroom 2 is on the right side at 209 sq ft. It also includes a closet. Bedroom 3, also in the right wing, provides 195 sq ft and another closet.
Bathroom 1 measures 66 sq ft and sits near the center-right side of the plan. Bathroom 2 measures 54 sq ft and serves the right bedroom wing.
The left side holds the main food-and-gather spaces. The Kitchen offers 210 sq ft. The Dining Room adds a roomy 248 sq ft. A Pantry of 43 sq ft supports storage without fuss.
The Living Room sits to the right of the hall and measures 195 sq ft. It balances the dining space well and keeps the center of the house active. The Utility room provides 36 sq ft. Small, yes. Useful, absolutely.
We have more facade options of this design:
All-White Brick Siding

The big change is the full switch to white brick across both the center section and the wings, and it sharpens the whole facade instantly. Instead of breaking the front into different materials, the house now reads as one crisp composition, with the central gable feeling taller and more sculpted.
Very neat. Very smug, in a good way.
That all-white brick skin also makes the black-framed glass entry and matching windows pop much harder, almost like eyeliner for the house. The pale masonry pairs cleanly with the standing-seam metal roof, giving the farmhouse front a brighter, more polished face while keeping its simple, symmetrical bones intact.
Gray Brick Center with Forest Green Wings

The big facade change is the new material split: a grey brick center now anchors the house, while the wings shift to forest green siding. That contrast gives the front elevation a sharper pavilion look, with the central gable feeling weighty and crisp instead of just politely standing there.
The forest green side sections make the black window frames pop and add a moodier farmhouse edge, while the grey brick keeps the entry bright and tailored. Paired with the pale standing-seam roof and tall glazed gable opening, the whole facade feels more graphic, more balanced, and just a little smug—in a good way.
Deep Blue Board-and-Batten Siding with Gray Wings

The big switch is the facade palette: the center is now wrapped in deep blue board-and-batten, giving the main gable a taller, sharper presence.
It makes the entry bay feel more pavilion-like and a bit dressier, while the black-framed glass still punches through with crisp contrast. Very farmhouse, but with better posture.
The wings shifting to grey softens the outer edges and lets the center steal the show—politely, but absolutely. That cooler tone pairs neatly with the metal roof and keeps the long front elevation balanced, calm, and clean.
The whole facade now reads more layered and intentional, like it finally picked the right jacket.
Bronze Metal Center with Yellow Wings

The big change is the facade palette: the center is now wrapped in bronze metal siding, turning the entry gable into a crisp, sculptural focal point. It gives the tall glass doors and the peaked window above a darker, richer frame—like the house slipped into a sharp bronze coat.
The wings shift to yellow siding, brightening the long facade and making the black-framed windows pop with extra zing. Paired with the pale standing-seam roof, the contrast feels playful and polished at once—sunny at the edges, moody in the middle, and a little smug about how good it looks.
White Brick Center with Black Wings

The big change is the facade palette: the center is now wrapped in white brick, while the side wings turn black, and the whole front suddenly has more drama than it strictly needs. That crisp contrast spotlights the tall central gable, making the entry feel brighter, sharper, and a lot more ceremonial.
The black wings visually tuck back, so the white brick center steps forward and steals the show—fair enough, it earned it. Paired with the dark-framed windows and glass front doors, the update gives the farmhouse facade a cleaner, more graphic rhythm under the metal roof, with just enough attitude to keep it from behaving too politely.
Pin this for later:



Table of Contents




