Last updated on · ⓘ How we make our floor plans

This is a two-story traditional brick house plan with 1,674 sq ft across two levels. The layout is compact, efficient, and clearly split between living spaces below and bedrooms above.

The facade is classic and composed. Red brick forms the main exterior, paired with light trim, black divided-light windows, and a deep arched entry for a touch of ceremony. Steep gables shape the architecture. Dark asphalt shingles cover the primary roof, while a standing-seam metal accent roof sharpens the front elevation.
These are floor plan drafts. They are available for download as a printable PDF, making review simple for planning, markup, and the inevitable debate over furniture placement.
- Total area: 1,674 sq ft
- Bedrooms: 3
- Bathrooms: 3
- Floors: 2
Main Floor

The main floor provides 866 sq ft. The plan opens from the front entry into a broad shared living zone. The kitchen sits to the left, the dining area and Butler’s Pantry sit to the right, and the living room anchors the main gathering space. The pantry, Bathroom 1, and stair core stay near the center. Utility space is placed to the rear for a tidy setup.
- Entryway: 109 sq ft
- Living Room: 237 sq ft
- Kitchen: 208 sq ft
- Dining Area: 82 sq ft
- Butler’s Pantry: 91 sq ft
- Pantry: 21 sq ft
- Bathroom 1: 42 sq ft
- Utility: 78 sq ft
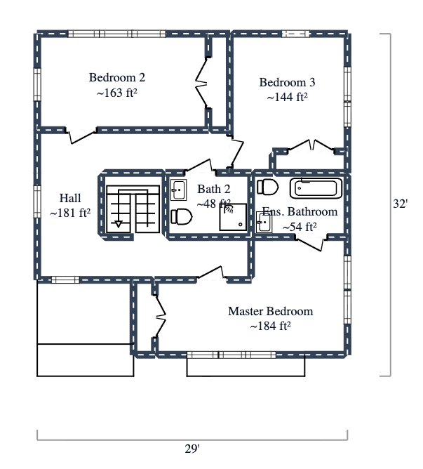
Upper Floor

The upper floor contains 808 sq ft. This level is the private wing of the house. A large central hall organizes the circulation and connects all three bedrooms with two bathrooms. The arrangement is direct and easy to read. No maze behavior here.
- Hall: 181 sq ft
- Master Bedroom: 184 sq ft
- Ens. Bathroom: 54 sq ft
- Bedroom 2: 163 sq ft
- Bedroom 3: 144 sq ft
- Bath 2: 48 sq ft
We have more facade options of this design:
Grey Color Siding

The big change is the grey siding, and it completely sharpens the facade. That cooler tone gives the tall gables a crisper outline, makes the black-framed windows pop harder, and lets the dark roof feel more stitched into the whole composition. Very tidy.
Very composed. A little “I have my life together” energy.
With the siding shifted to grey, the front elevation reads more modern while keeping its cottage-style bones. The arched entry porch looks cleaner, the small metal awning feels more deliberate, and the simple horizontal cladding now highlights the house’s vertical massing without any fuss.
Grey was a sly move—it calmed the facade down and made it look fancier without showing off.
Beige Stone Siding

The big change is the siding: it’s now wrapped in beige stone, and that single move gives the facade a warmer, more rooted look. The pale masonry makes the steep front gables feel richer and more classic, while the dark roof and black-framed windows pop with a neat little drama—very dressed up, not trying too hard.
That beige stone also reshapes the smaller details. The arched entry feels more storybook, the front projection looks sturdier, and the simple trim reads cleaner against the textured surface.
Even the metal awning over the lower window gets a sharper cameo now; the whole facade feels more tailored, with just enough swagger.
Urbane Bronze Siding

The big shift is the siding in urbane bronze, and it gives the facade a moodier, sharper costume. That richer tone settles beautifully across the horizontal lap siding, making the steep front gables look more sculpted and a bit more stately—without turning the house into a drama queen.
With the new bronze skin, the black gridded windows read crisper, the arched entry porch feels more pronounced, and the light metal awning pops with neat contrast. Even the simple vent detail in the upper gable stands out more now, while the whole front elevation lands with a clean, tailored punch.
Black Siding

The big change is the black siding, and it gives the facade a sharper, moodier punch. It turns the steep front gables into bold silhouettes, makes the arched entry feel more dramatic, and gives the whole house that dressed-in-tailored-charcoal look.
With the facade darkened, the black window frames and trim now blend into a sleek, almost seamless composition, while the warm interior glow pops like little lanterns. Even the small metal awning and chimney read cleaner and more sculptural against the deep exterior—very polished, a touch brooding, and honestly a bit of a show-off.
White Siding

The switch to white siding completely remixes the facade. It makes the steep gables look crisper, pushes the black mullioned windows forward, and gives the arched entry a neat storybook pop—very clean, very composed, a little bit showing off.
With the siding now white, the dark roof shingles and gray metal window awning read sharper and more tailored against it. The horizontal lap boards feel brighter and more precise, so the whole front elevation lands as fresh, cottage-like, and quietly fancy.
Pin this for later:



Table of Contents




