Last updated on · ⓘ How we make our floor plans

This is a compact, modern single-storey home with a practical three-bedroom core, a generous carport, and a clean indoor–outdoor rhythm.
The façade leans contemporary and crisp. A bold mono-pitch roof with wide overhangs keeps the silhouette sharp. Horizontal lap-style siding pairs with smooth rendered planes and deep gray portal frames. Large aluminum-framed glazing (including a bay window) does the heavy lifting for daylight. Roofing reads as standing-seam or similar metal sheeting—quietly confident, like it knows it won’t leak.
These drawings are floor plan drafts. They are available for download as printable PDF, ready for marking up, redlining, and debating with a ruler in hand.
- Total area (all floors): 1,496 sq ft (44 ft × 34 ft)
- Bedrooms: 3
- Bathrooms: 1
- Floors: 1
- Carport
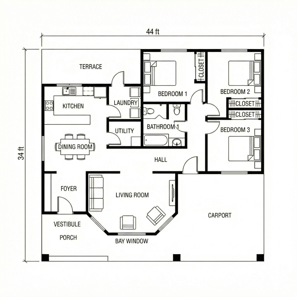
Main Floor (44 ft × 34 ft)


Overall footprint is approximately 1,496 sq ft. The plan is a straightforward rectangle with the carport occupying the right wing, and the main living spaces centered and left. A foyer-to-living sequence anchors the front, while a central hall cleanly distributes bedrooms and the shared bath. Service rooms (utility and laundry) sit between kitchen and sleeping zone, doing their job without demanding applause.
- Porch and Vestibule at the main entry
- Foyer leading into the core
- Living Room with a Bay Window (the house’s polite way of saying “look at me”)
- Dining Room open to the kitchen side
- Kitchen with direct connection to the outdoor terrace
- Utility room
- Laundry room
- Hall (central circulation)
- Bathroom 1 (full bath layout shown)
- Bedroom 1 with nearby Closet
- Bedroom 2 with Closet
- Bedroom 3 with Closet
- Terrace (outdoor extension off the kitchen/laundry side)
- Carport (covered parking zone on the right)
Table of Contents




