Last updated on · ⓘ How we make our floor plans

This is a two-story modern cottage house plan with a clean family layout, an attached garage, and a balanced room arrangement across both levels.

The facade mixes modern farmhouse neatness with soft European cottage notes. Two front-facing gables give the elevation a crisp, upright look. The recessed entry adds depth, while the arched garage door brings a bit of flair without showing off too hard. The exterior appears to pair white-painted masonry with vertical natural wood cladding accents. Black-framed windows sharpen the composition. The roof is finished in light gray shingles or tile, with a simple, steep profile that suits the house well.
These floor plan drafts are available for download as a printable PDF. They are clear working layouts, useful for review, printing, and the occasional spirited debate over pantry placement.
- Total area: 2,850 sq ft
- Bedrooms: 4
- Bathrooms: 3
- Floors: 2
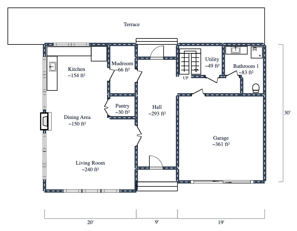
Main Floor

The main floor measures about 48′ wide by 30′ deep, based on the marked plan dimensions. The layout is simple and efficient. Open living spaces sit to the left. Service rooms, stairs, and the garage sit to the right. It is practical. It does not wander.
The front entry opens into a large central hall of about 293 sq ft. From here, the plan connects smoothly to the social rooms, garage, stair, and utility spaces. The left side holds the main day-to-day living zone. The right side handles the workhorse duties. A sensible split. Shoes and groceries will approve.
- Living Room: approximately 240 sq ft
- Dining Area: approximately 150 sq ft
- Kitchen: approximately 154 sq ft
- Mudroom: approximately 66 sq ft
- Pantry: approximately 30 sq ft
- Hall: approximately 293 sq ft
- Utility: approximately 49 sq ft
- Bathroom 1: approximately 83 sq ft
- Garage: approximately 361 sq ft
- Terrace: rear outdoor access
- Stair: centrally placed near the utility room
The living room and dining area flow together along the left side, with the kitchen at the rear left corner. The kitchen also connects neatly to the mudroom and pantry. At the back, the terrace extends the usable space outdoors. On the right, the utility room and full bathroom sit beside the stair, with direct access to the garage nearby. It is a no-nonsense floor. In a good way.
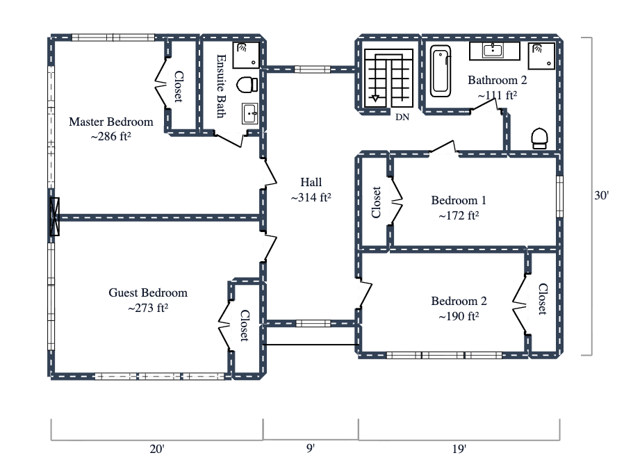
Upper Floor

The upper floor also measures about 48′ wide by 30′ deep. This level is arranged around a large central hall of about 314 sq ft. Bedrooms spread to both sides, giving each room decent privacy and clear access to the bathrooms. The plan feels organized and calm. No maze behavior here.
The master suite occupies the upper left portion and includes a private ensuite bath and closet. A large guest bedroom sits below it. On the right side, two additional bedrooms share a spacious common bathroom. The stair lands near the center, keeping movement easy and direct.
- Master Bedroom: approximately 286 sq ft
- Ensuite Bath: attached to the master bedroom
- Master Closet: attached closet
- Guest Bedroom: approximately 273 sq ft
- Guest Closet: attached closet
- Bedroom 1: approximately 172 sq ft
- Bedroom 1 Closet: attached closet
- Bedroom 2: approximately 190 sq ft
- Bedroom 2 Closet: attached closet
- Bathroom 2: approximately 111 sq ft
- Hall: approximately 314 sq ft
- Stair: central landing
The bedroom sizes are generous, especially the master and guest rooms. Bathroom 2 is roomy enough to serve the secondary bedrooms comfortably. The central hall is larger than usual, which makes the floor feel airy rather than squeezed. Hallways rarely steal the scene, but this one gives it a decent try.
Pin this for later:

We have more facade options of this design:
Deep Red Siding

The siding now dives into a deep red, swapping its calmer past life for boldness. It punches up the twin gables, sharpening their profiles against the pale shingle roof and light trim.
Black-framed windows read inkier, while the vertical blond-wood insets at the entry and over the arched garage glow brighter by contrast. Even the chimney turns into a quiet exclamation mark.
This richer hue nudges the vibe from restrained cottage to modern barn-chalet—still sleek, just with a bolder handshake. It heightens symmetry across the flanking masses, anchors the central bay, and warms the arched garage face.
The greenery now acts like complimentary stage lighting, and the gutters and sconces recede gracefully into the drama. Same lines, new attitude—like the facade had an espresso shot.
Deep Blue Color Siding

Switched to deep blue siding, the facade suddenly sharpens: the twin front gables read crisper, the vertical pale-wood insets pop, and the black-grid windows feel like bold punctuation. Gutters, chimney, and window returns recede, letting the massing and those deep shadow lines do the talking.
The new blue plays wingman to the light shingle roof and sandy garage arch, dialing up contrast and giving the balcony nook extra depth. It cools the palette, unifying the bay window and entry volume so the house looks evening-ready—sleek, composed, and just a little dramatic.
Urbane Bronze Siding

The siding just dove into Urbane Bronze, trading its safer tone for a moody, espresso shell. The darker skin spotlights the crisp gables and clean eaves, while the pale wood cladding now glows like caramel against it.
Black window grids pop, and the light roof reads airier by contrast—silver over a well-cut suit.
This color shift sharpens everything: the central vertical bay stands bolder, the arched garage doors gain clearer outlines, and trim lines look almost laser-cut.
Shadows deepen under the balcony and lintels, adding depth without a single new brick. Same forms, fiercer attitude—polish dialed to eleven.
Forest Green Color Siding

The big switch is the siding—now a deep forest green. It compresses the twin gables into bolder silhouettes, snaps the black mullioned windows into crisp focus, and makes the pale shingle roof look almost silver.
Even the chimney reads sleeker, like it got a sharper haircut.
That green sets off the blond-wood entry bay and arched garage doors, warming them like candlelight against pine. Eave trim and gutter lines outline the forms cleanly, so the facade reads clear and composed.
Same geometry, new mood: chalet calm with a woodland wink.
Dark Grey Color Siding

The siding’s gone dark gray, swapping a soft vibe for a crisp, moody shell. Light timber gable trims and the pale shingle roof now snap with contrast.
Black-grid windows read bolder, and the vertical center bay throws deeper shadow-lines. The chimney and downspouts blend stealthily, while the natural-wood garage doors and entry canopy glow like highlights.
This palette pivot shifts the place from cottage-leaning to modern chalet. Twin front gables look leaner and the arched garage openings feel more sculpted.
Landscaping reads lusher against the darker plane—curb-drama achieved. Same elegant bones, but now the house wears a tuxedo instead of a cardigan.
Rustic Grey Siding

The facade now wears rustic grey siding, swapping its warmer tone for a weathered, chalet-cool skin. The silvery boards sharpen the twin gables, make the black-mullioned windows pop, and give the recessed bay and petite overhang extra contour.
This cooler cladding ties neatly to the shake roof, unifying the massing while letting the arched garage doors and trim do the talking. Shadows sit deeper along eaves and joints, so textures read older and crisper—like a vintage jacket that somehow fits better than new.
Table of Contents




