Last updated on · ⓘ How we make our floor plans

This is a compact single-story ranch design with a clean footprint and a very efficient plan. It is simple, sensible, and easy to live in.

The facade is traditional and neatly composed. A centered entry, balanced multi-pane windows, and shutter accents give it a calm, orderly face. The exterior appears to use painted brick siding with crisp white trim. The roofline is low and clean, finished in dark shingles, and the chimney adds a little old-school charm without making a fuss.
These are floor plan drafts, and they are available for download as a printable PDF. Convenient, practical, and far easier to carry than the actual house.
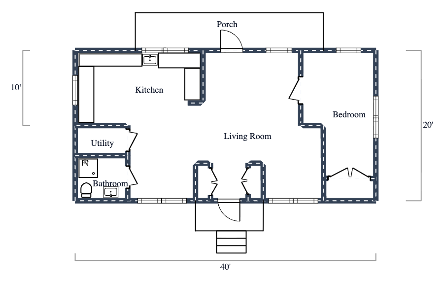
- Total area: 800 sq. ft.
- Bedrooms: 1
- Bathrooms: 1
- Floors: 1
Main Floor

The main floor spans about 40 feet wide by 20 feet deep, for roughly 800 square feet. The layout is direct. The kitchen and service rooms sit on the left. The living room takes the center. The bedroom fills the right side. A porch is centered off the upper side of the plan, and a small entry stoop sits below.
There is very little wasted space here. No long wandering hallways. The living room handles circulation like a polite traffic officer.
- Living Room: Large central gathering space. It connects the entry, kitchen, porch, and bedroom.
- Kitchen: Upper left location. An efficient work area with wraparound counters.
- Utility: Left side service room beside the kitchen. Useful for laundry, storage, or household extras.
- Bathroom: Lower left corner. A compact bath with a shower, toilet, and sink.
- Bedroom: Right side of the plan. A private sleeping room with closet storage.
- Porch: Centered off the upper side. A simple outdoor extension of the main living area.
Pin this for later:

We have more facade options of this design:
Red Siding with White Brick

Switched to punchy red lap siding over crisp white brick, the facade now pops like a postcard. The contrast sharpens the long ranch line, makes the navy shutters feel tailored, and turns the orange door into a cheerful exclamation point.
Same symmetry, bolder outfit.
The white brick base reads as a clean plinth, visually lifting the house while unifying the stair blocks and entry cheek walls into one tidy frame.
Red boards carve deeper shadow lines, corralling the twin window bays and spotlighting the centered stoop. Even the dark chimney and roof seem to stand at attention for the new color commander.
Deep Blue Siding with Grey Brick

Deep blue siding now wraps the facade, teamed with a crisp band of grey brick along the foundation and chimney. The cooler pair tightens the ranch’s lines and throws bolder contrast on the centered entry and flanking windows.
That grey brick also marches up the stoop and planter piers, grounding the front steps with a bit of swagger, while the navy boards make the white trim and grids pop. The warm door gets to play the extrovert, glowing against the moody shell without breaking a sweat.
Mint Green Siding with Brown Brick

The facade now wears mint‑green lap siding over a brown‑brick plinth, shifting the vibe to fresh-on-top, grounded-below. That brick continues through the stoop and chimney, giving the light siding a sturdy perch while white trim and navy shutters pop cleanly against it.
This color flip brightens the long ranch profile, makes the paired 6‑over‑6 windows feel wider, and turns the peachy door into a cheerful exclamation mark. The dark shingle roof caps it like chocolate on mint ice cream—restrained, tidy, and just a little tasty.
White Shiplap Siding with Red Brick

The facade now swaps to crisp white shiplap paired with a confident red-brick base. Horizontal boards clean up the ranch lines, and the brick rises into the stoop and piers so the entry feels like a tiny stage—centered door, ready for its close‑up.
That white-with-brick combo amps contrast: twin window bays and dark shutters pop, the long eave reads lighter, and the charcoal roof suddenly looks curated. Brick grounds, shiplap brightens—classic duo, tidy punch, curb-appeal high five.
Black Shiplap Siding with Stone Accents

Now clad in black shiplap, the facade swaps cozy for crisp. The horizontal boards stretch the low ranch profile, making it read longer and leaner.
White window trim and gridded sashes pop like chalk on slate, and the warm door becomes a precise target at center. Even the chimney joins the blackout, finally matching the suit.
Below, a new stone wainscot wraps the base and builds stout entry piers. Ashlar courses and stone treads give the stoop real weight, turning the threshold into architecture, not just steps.
The composition snaps into layers—stone foundation, white trim line, black wall plane—clean and deliberate. Small frame, big presence; black tie up top, hiking boots below.
Table of Contents




