Last updated on · ⓘ How we make our floor plans

This compact modern cabin is a smart two-level retreat with a bright loft. Simple footprint. Big personality.
The facade mixes clean gables with generous glazing. Vertical wood siding pairs with crisp, dark-trimmed windows and doors for contrast. A broad front deck and a sheltered side porch set the rhythm. Roofing is standing-seam metal on a steep primary gable with tidy eaves. Minimal ornament, maximum craft.
These are floor plan drafts, prepared for quick review and printing. Download the set as a printable PDF and mark it up to your heart’s content.
- Total area: 562.5 sq ft
- Bedrooms: 1
- Bathrooms: 1
- Floors: 1.5
Main Floor — 450 sq ft


Open living at the front with a straight shot to the porch. Kitchen anchors the core with pantry support. Bath and laundry tuck neatly to one side. Stair rises compactly to the loft. No wasted steps, no wasted socks.
- Living Room — 135 sq ft
- Kitchen — 90 sq ft
- Bathroom — 45 sq ft
- Laundry — 45 sq ft
- Pantry — 22.5 sq ft
- Porch — 112.5 sq ft
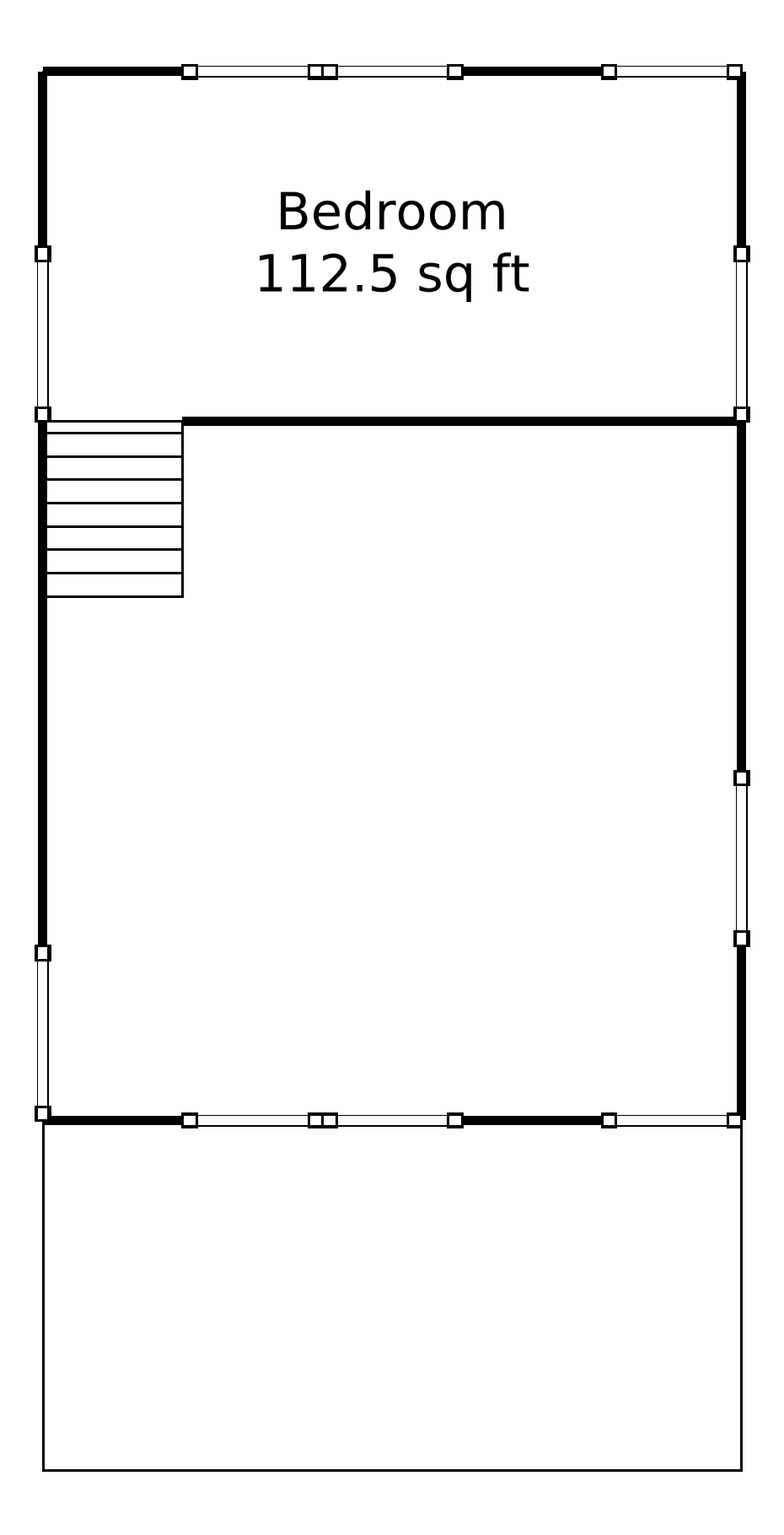
Lofted Floor — 112.5 sq ft


An airy loft overlooks the living zone and drinks in gable light. Ideal for a calm sleep nook or a secret reading lair. The stair lands right where it should—no midnight maze.
- Bedroom — 112.5 sq ft
We have more facade options of this design:
White Color Siding

Swapped to bright white, the facade turns the black window grids and French doors into bold outlines. The board-and-batten reads sharper, and the triangular clerestory under the front gable suddenly steals the show.
Dark metal roof and trim now act like eyeliner—clean, crisp, unapologetic.
That fresh white also spotlights the warm timber porch: posts, benches, and the cantilevered canopy feel richer against the pale backdrop.
Overhangs cast graphic shadows, the gable geometry pops, and the sconces look purposeful rather than decorative. Same compact cottage, now in a crisp suit—tailored and bright.
Black Color Siding

Painted in deep black, the facade turns sharp and modern—the little black dress of cabins. The gabled mass now reads as one clean silhouette, while the black French doors and gridded windows visually merge with the siding, making the glazing feel larger.
Even the roofline looks sleeker, with the triangular loft window punching a crisp, dramatic highlight.
That black backdrop spotlights the warm timber porch and beams, which suddenly look handcrafted and sculptural. Benches, posts, and trim pop like frames in a gallery, and the dark color deepens shadow lines around overhangs for extra depth.
The lantern-style sconces glow brighter against the noir canvas—tiny stage lights for a very dapper entry.
Forest Green Siding

Now cloaked in forest green, the facade feels deeper and more tailored. The black window grids, French doors, and fascia snap into crisp relief. The gable’s triangular window reads sharper, almost jewel-cut. A simple color shift, big visual oomph.
Warm cedar porch elements glow brighter against the darker siding. The shed-roof entry and stepped deck rails look more architectural, less porchy. Rooflines feel sleeker, shadows richer. It’s the same house, but now it’s wearing an evergreen tux.
Pale Yellow Siding

Switched to a pale yellow facade, the house suddenly glows—like lemon sorbet with steel eyeliner. The board-and-batten reads crisper, while the black metal roof and trim snap into higher contrast, giving the compact gable massing extra definition.
The soft hue brightens the glazed French doors and the triangular clerestory, making the window grids feel bolder. It also warms the timber posts and wraparound porch, pulling the whole composition together—sunny, tidy, and just cheeky enough to wink at modern farmhouse vibes.
Table of Contents




