Last updated on · ⓘ How we make our floor plans

This design is a compact two-story modern home with a clean 30’ x 30’ footprint per level, crafted for efficient living with just enough drama to keep the neighbors curious.
The façade follows a crisp contemporary style. Strong horizontal lines, flat roofs, and deep overhangs frame generous floor‑to‑ceiling windows. Smooth light-toned stucco pairs with textured stone cladding to create a sharp contrast and a quietly luxurious feel.
Glass balcony railings keep the elevations light and uncluttered, while large sliding doors open the main floor to the deck and pool.
The overall effect is minimalist, but not cold—more “architect’s retreat” than “science lab.”
These drawings are floor plan drafts. They are prepared to scale and available as downloadable, printable PDF files, ideal for reviewing on paper, sketching furniture layouts, or impressing friends with your sudden fluency in architecture.
- Total area: 1,800 sq ft (two floors at 30’ x 30’ each)
- Bedrooms: 3
- Bathrooms: 3.5
- Floors: 2
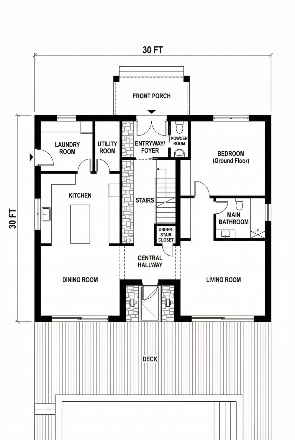
Main Floor – 30’ x 30’ (900 sq ft)

The main floor is organized along a central spine. Entry is from the front porch into an axial foyer and hallway, with living spaces opening to the rear deck and pool. Service rooms sit neatly to the left, while a ground-floor bedroom suite anchors the right side. Circulation is clear and straightforward—no maze, no mystery.
Rooms and spaces:
- Front Porch and Entryway / Foyer
- Central Hallway
- Stairs with Under‑stair Closet
- Living Room facing the rear deck
- Dining Room opening toward the deck
- Kitchen with central island, adjacent to dining
- Laundry Room, directly accessible from the kitchen side
- Utility Room next to the laundry, ideal for mechanicals and storage
- Powder Room near the foyer for guests (and quick rescues)
- Ground‑Floor Bedroom for guests or aging in place
- Main Bathroom serving the ground‑floor bedroom
- Rear Deck extending the living and dining areas outdoors
Upper Floor – 30’ x 30’ (900 sq ft)

The upper floor mirrors the footprint below, with a simple and efficient 30’ x 30’ square. The stair lands at the center, feeding a short hall that splits the level symmetrically into two private bedroom suites. Each suite enjoys its own bathroom and balcony, so everyone gets the “good room” for once.
Rooms and spaces:
- Stairs and Central Hall
- Linen Closet off the hall
- Bedroom 1 with direct access to:
- Bathroom 1 (en‑suite)
- Private Balcony for Bedroom 1, overlooking the rear
- Bedroom 2 with direct access to:
- Bathroom 2 (en‑suite)
- Private Balcony for Bedroom 2
Table of Contents




