Last updated on · ⓘ How we make our floor plans

This design is a crisp modern two-story home with a clear love for straight lines, glass, and generous indoor–outdoor flow. It aims for everyday comfort with a slightly spoiled sense of scale.
The facade uses a calm mix of smooth white stucco and warm vertical wood panels, wrapped with large floor-to-ceiling windows in dark, slender frames. The architecture is flat-roofed, rectilinear, and layered, with upper volumes floating lightly over the glazed lower level. Horizontal bands of continuous clerestory windows accent the roofline, while clean reveals and minimal overhangs keep the look sharp and almost suspiciously tidy.
These drawings are floor plan drafts prepared for design review and tweaking. They are available for download as printable PDF files, ready for red pens, coffee stains, and serious dreaming.
- Total area: 4,084 sq ft (approx.)
- Bedrooms: 3
- Bathrooms: 4
- Garage
- Floors: 2
Main Floor – 62′ x 38′


The main floor stretches roughly 2,356 sq ft, forming an L-shaped social level. Living areas line the glazed sides, while service spaces and garage anchor the solid wing. Circulation is simple and direct, so getting from snacks to sofa is mercifully short.
Rooms and spaces on this level:
- Covered porch
- Entryway with closet
- Living room
- Dining room
- Kitchen with island
- Hall
- Stairs to upper floor
- Bathroom (with shower)
- Laundry room
- Utility room
- Attached garage
- Terrace opening off the hall and living areas
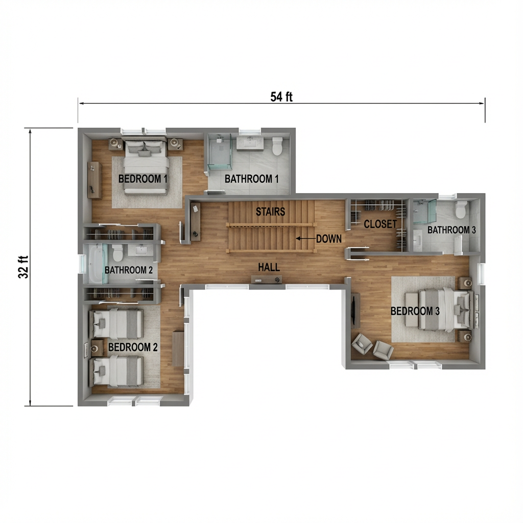
Upper Floor – 54′ x 32′


The upper floor spans about 1,728 sq ft and forms a balanced private wing above, wrapping around the void below. Bedrooms sit at the corners for light and privacy, while the central hall keeps circulation efficient and arguments about who’s too loud nicely distributed.
Rooms and spaces on this level:
- Central hall
- Stairs (open to both levels)
- Bedroom 1
- Bathroom 1 (adjacent to Bedroom 1)
- Bedroom 2
- Bathroom 2 (serving Bedroom 2)
- Bedroom 3
- Bathroom 3 (serving Bedroom 3)
- Hall closet
Table of Contents




