Last updated on · ⓘ How we make our floor plans

This compact cottage design delivers a cozy, efficient two-story home with a straightforward 20 ft by 20 ft footprint and a warm, craftsman-inspired character. It is small on square footage and big on charm—like a cabin that decided to get its life together.
The façade blends a steep front gable roof with exposed timber framing, shingle siding in the upper gable, and stone cladding at the main level. A full-width covered porch anchors the front, supported by sturdy wood posts on stone bases. Multi-pane windows, a centered front door, and a side masonry chimney complete the architecture, with asphalt or composite shingles finishing the roof for durability.
These drawings are floor plan drafts prepared for review and adjustment. They are available as downloadable, printable PDF files so you can mark them up, doodle furniture, or plan your great escape in satisfying black and white.
- Total Area: Approx. 800 sq ft (400 sq ft per floor at 20 ft × 20 ft)
- Bedrooms: 2
- Bathrooms: 2
- Floors: 2
Main Floor – 20 ft × 20 ft


The main level is a 400 sq ft open social zone wrapped in a simple square. The porch stretches across the full front, leading into a combined living and kitchen area, with service spaces tucked neatly along the back wall. Circulation is intuitive: in at the center, up by the stairs, coffee to the right, fireplace to the left—priorities in order.
- Porch: Full-width covered front porch, ideal for chairs, plants, and philosophizing.
- Living Room: Front-left space with a fireplace on the side wall; visually connected to kitchen and porch.
- Kitchen: Front-right corner with L-shaped counters, sink under the window, and a central island for prep and casual seating.
- Stairs: Central stair core, running up along the middle of the plan for efficient structure and easy access.
- Bathroom: Rear-left, with shower, toilet, and vanity; convenient for guests and main-floor living.
- Laundry: Behind the bathroom, with side-door access and space for side-by-side machines.
- Utility Room: Rear-right room for mechanicals and storage, keeping the clutter heroically out of sight.
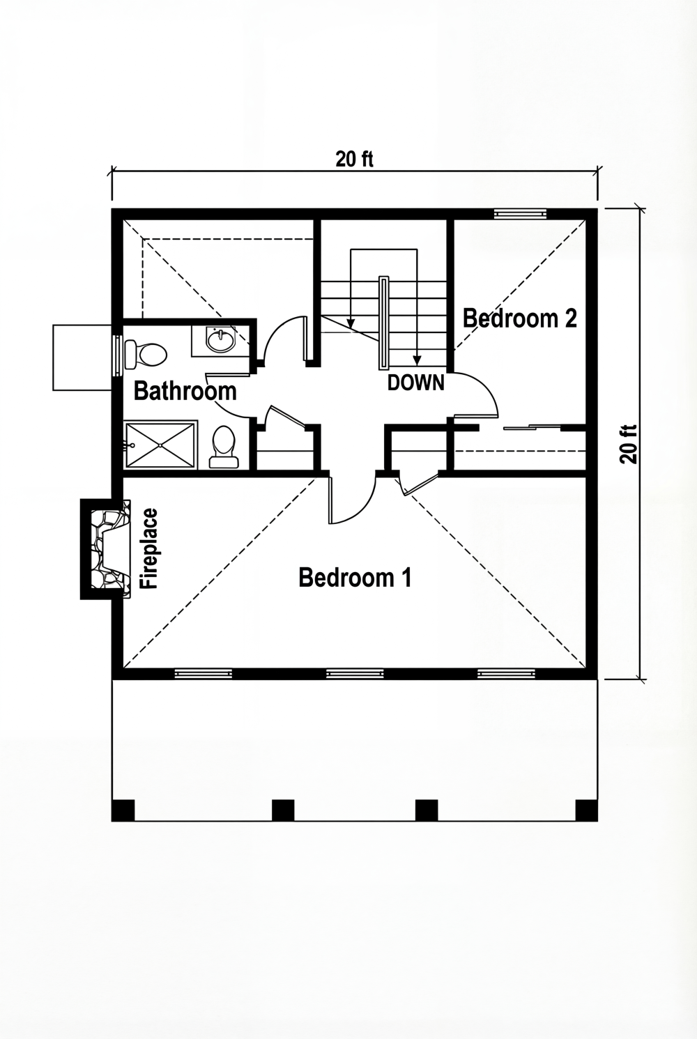
Upper Floor – 20 ft × 20 ft


The upper level repeats the 20 ft by 20 ft, again at about 400 sq ft, focused on private spaces. A compact central landing splits the floor into a large primary bedroom to the front and a secondary bedroom to the rear, with a shared bathroom and the chimney mass along the side. It’s the “sleep and recharge” deck.
- Bedroom 1: Large front room spanning the full width, above the living area; enjoys multiple front windows and the fireplace chase on the side.
- Bedroom 2: Rear-right bedroom, proportioned for a guest room, office, or that hobby you swear you’ll start next year.
- Bathroom: Rear-left, above the main-floor bath, with shower, toilet, and vanity; easy plumbing stacking.
- Stair Landing / Hall: Central circulation hub connecting both bedrooms and the bathroom with minimal wasted space.
- Fireplace Chase: Vertical alignment of the chimney along the left wall, serving the fireplace on both levels.
Table of Contents




