Last updated on · ⓘ How we make our floor plans

This is a charming farmhouse with an inviting facade that whispers sophistication with every glance. The architecture gracefully intertwines traditional forms with modern elegance. Its exterior is clad in pristine white brick siding, paired effortlessly with sleek black accents. A subtle yet striking metal roof tops it all off, not just shielding but also adding character.
Our floor plan drafts are ready for action and just a click away for download as printable PDFs. Prepare your printer and clear some desk space!
- Total area: 1,000 sq. ft.
- Bedrooms: 2
- Bathrooms: 1
- Floors: 1
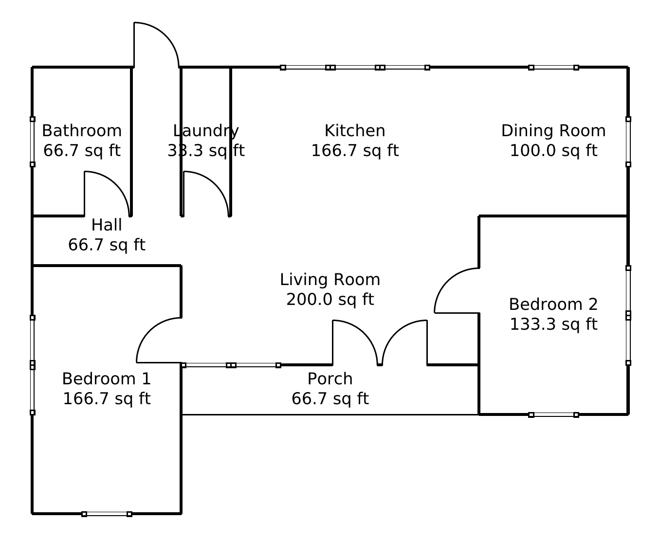
Main Floor


Step into a realm of comfort and class with the main floor spanning 1,000 square feet. The Living Room, at 200 sq ft, is the main stage, perfect for movie marathons or pondering life’s mysteries.
The Kitchen follows suit with 166.7 sq ft of culinary creativity space, ideal for whipping up everything from five-course meals to midnight snacks.
Bedroom 1 and Bedroom 2, snug at 166.7 and 133.3 sq ft respectively, are your ultimate sleep sanctuaries.
The Bathroom, cozy at 66.7 sq ft, offers just the right luxury for leisurely baths or quick showers alike.
Find order in chaos within the 66.7 sq ft Hall, designed to ensure you never stub a toe or lose your keys.
The Dining Room, a quaint 100 sq ft, sets the scene for family feasts or intimate dinners.
Laundry chores become less of a snore in the Laundry space clocking in at 33.3 sq ft.
Finally, unwind and soak in some fresh air on the charming 66.7 sq ft Porch. The perfect spot for your morning coffee—or a dash to catch the pizza delivery in time.
We have more facade options of this design:
White Shiplap Siding

So, the facade got a fresh update—goodbye generic siding, hello crisp white shiplap! Now the whole house beams with farmhouse charm, like it just got back from a spa day.
The horizontal lines of the shiplap add just enough texture to keep things interesting, but not so much that the mailman gets confused.
Paired with those dark window frames and the modern metal roof, this white shiplap isn’t just fresh—it’s positively zesty.
The entry pops even more now, flanked by those neat vertical boards, daring the neighbors not to stare. Honestly, this house looks so bright, you’d think it comes with its own Instagram filter.
Black Slate Siding

Suddenly, the house decided to dress up for a black-tie event—its once conventional siding has been swapped for dramatic black slate. So long, bland and ordinary!
Now, the textured dark facade gives a brooding, modern flair, boldly framing the large windows and crisp white trim. It’s basically the Batman of suburban architecture—mysterious, yet charming.
The light timber porch trim now pops against the dramatic backdrop, looking a bit like it’s stepping out onto the spotlight.
Garden greenery and chunky rocks in front seem greener and chunkier, daring anyone to ignore them against the new inky walls. Neighbors are probably jealous—and considering their own villainous makeover.
Rustic Wood Siding

Gone is the modern, crisp siding—say hello to rustic wood! The facade now boasts sturdy log beams and charming wooden planks, making the house look ready to star in an upscale lumberjack magazine.
It’s like the whole exterior traded its fancy suit for a flannel shirt and boots.
This fresh, textured wood brings out the cozy lodge vibes, pairing snugly with the metal roof and gabled dormers. Porch pillars look chunkier, windows pop against the weathered grain, and the whole place feels like it could host a world-class s’mores competition right out front.
Table of Contents




