Last updated on · ⓘ How we make our floor plans

This design is a compact modern gable house with a clean two-floor layout and a strong cabin-like character.

The facade is crisp and minimal. A steep front gable gives the home its sharp silhouette. Vertical siding in a deep green finish keeps the exterior sleek and graphic. Large sliding glass doors open the main level, while the tall upper window adds height and a little drama. The roof follows the same disciplined language, with a simple gabled form and a clean metal look.
These floor plan drafts present the layout clearly and are available for download as a printable PDF. Useful for planning, studying, or pretending to be very busy with architecture.
- Total area: 740 sq ft
- Bedrooms: 2
- Bathrooms: 2
- Floors: 2
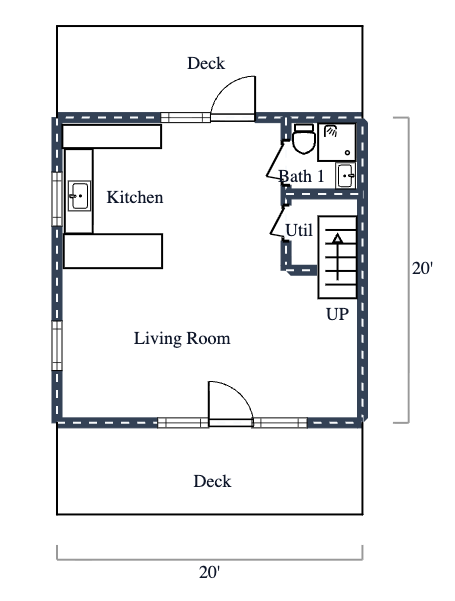
Main Floor


The main floor measures 20′ by 20′, for about 400 sq ft. The layout is open and efficient. The living room takes the front portion. The kitchen sits to the left. The bath, utility room, and stair are grouped to the right. Decks at both ends stretch the living space nicely.
The plan is simple to follow. Entry is from the front deck into the living room. The kitchen is open to the main space, so the floor feels larger than its footprint. The service zone is tucked neatly into one corner. It works hard and keeps quiet about it.
- Living Room – main shared space
- Kitchen – open layout with compact counters
- Bath 1 – full bathroom
- Utility – small service room
- Stair – access to the upper floor
- Front Deck – outdoor entry deck
- Rear Deck – outdoor extension off the back
Upper Floor

The upper floor measures 16′ by 20′ usable space, for about 340 sq ft. This level is arranged as the sleeping floor. Two bedrooms occupy the left side. The second bath and the stair landing sit to the right. The plan is compact, orderly, and very easy to understand.
A small central hall links the bedrooms. Bath 2 is placed near the stair for quick access. The dashed lines indicate sloped roof zones, which suit the house style well. Cozy, yes. Cramped, no.
- Bedroom 1 – upper left bedroom
- Bedroom 2 – lower left bedroom
- Bath 2 – full bathroom near the landing
- Stair / Landing – circulation core
Pin this for later:


We have more facade options of this design:
Black Color Siding

The siding shifts to deep black, and the house slips into a crisp tuxedo. Vertical boards pop, stretching the steep gable and sharpening the outline.
The concrete plinth now reads brighter by contrast, while the dark door and window frames fuse into a single graphic band.
Black also turns the tall lancet window into the star; the glass glows while the cladding recedes. Trim and joints vanish, proportions feel leaner, and the front becomes a near-monolith—quiet, moody, and just a little bit stealthy.
Bronze Color Siding

The siding now wears a bronze tone, flipping the gabled face from stoic to warm and crisp. Vertical boards read like tall ribs, their shadows richer against the metallic wash.
The slim lancet window turns gem-like in its setting, and the broad sliders feel purposefully framed. Same simple shape, new swagger.
Bronze teams up with the dark window frames and makes the concrete plinth pop brighter. In dull light it’s matte and calm; with sun it hints at glow, giving the pared-back facade a quiet drama.
Tight eaves and zero ornament let color carry the show, keeping the house lean, almost monastic—yet secretly in evening wear.
Red Color Siding

The big switch is the siding: it’s now a deep, barnish red, turning the simple gabled form into a crisp silhouette. Vertical boards read like fine ribs, their shadows sharper against the color.
Glazing becomes carved-out voids—especially that tall, chapel-esque window—so the facade feels cleaner and more graphic. Minimalist cabin, but with a bold lipstick moment.
The red also tweaks the perceived scale, making the volume tighter while spotlighting the large sliding doors. Warm cladding above, cool concrete plinth below—nice thermal contrast for the eyes.
Window frames blend into the skin, so the geometry does the talking. It’s the same quiet house, now humming in a richer key.
Blue Color Siding

The facade now wears deep blue vertical siding instead of its former plain tone. The color sharpens the steep gable silhouette and amplifies the rhythm of the boards.
The tall, pointed window and its smaller companion pop harder, their trim reading like bold punctuation.
Blue also binds the wide sliding glass doors into one strong rectangle, while making the concrete plinth feel lighter. Shadow lines deepen around each opening, adding relief to the minimalist face.
Same geometry, new attitude—calm, maritime, and a tad theatrical, like the house slipped into a navy tux.
Grey Color Siding

The siding shifts to a deep grey, trading the warmer cladding for a cool, near-charcoal skin. Vertical boards read crisper, so the steep gable looks slimmer and taller.
Dark window frames now blend with the facade, turning the large sliding opening into one clean void. The house basically put on a tailored suit.
That grey also pushes the tall, pointed window into star status, a graphite exclamation mark on the front. The pale concrete plinth brightens by contrast, making the box seem to hover.
Joints and trim recede, giving the elevation a minimalist, almost monastic calm—serene but not sleepy. Moodier color, sharper geometry, extra drama.
White Siding

The facade now wears white siding, swapping its previous hue for a crisp skin that brightens the whole gable front. Vertical boards stretch the house visually, pulling the eye up to the steep peak and that tall, chapel-like window.
Black frames suddenly shout, outlining the lancet and the big sliding doors with sharp contrast. The porch edge and trim read cleaner, almost surgical.
With the siding lightened, shadows do the decorating: grooves between boards sketch fine pinstripes across the face. The mass feels slimmer and more monolithic, so the openings read as cutouts rather than add-ons.
In gray weather it blends like a cloud; at dusk it turns beacon, small but confident. Minimalist cabin, now wearing its tuxedo in reverse—and it suits it.
Table of Contents




