Last updated on · ⓘ How we make our floor plans

This is a two-story cottage-style house plan with a practical family layout, four bedrooms, and generous shared living space.

The facade is crisp and orderly. Three front-facing gables give the elevation rhythm. Painted brick masonry shapes the main walls. Rough stone porch piers add weight. Warm timber soffits soften the edges. The roof is steep and clean, finished in pale panel-style roofing for a sharp, durable top line.
These floor plan drafts are available for download as printable PDF files. They are easy to review, print, and mark up. Useful for planning, builder talks, or a little harmless daydreaming at the table.
Key Specs
- Total area: 2,400 sq ft
- Bedrooms: 4
- Bathrooms: 3.5
- Floors: 2
Room areas below are approximate, based on the draft layout proportions.
Main Floor


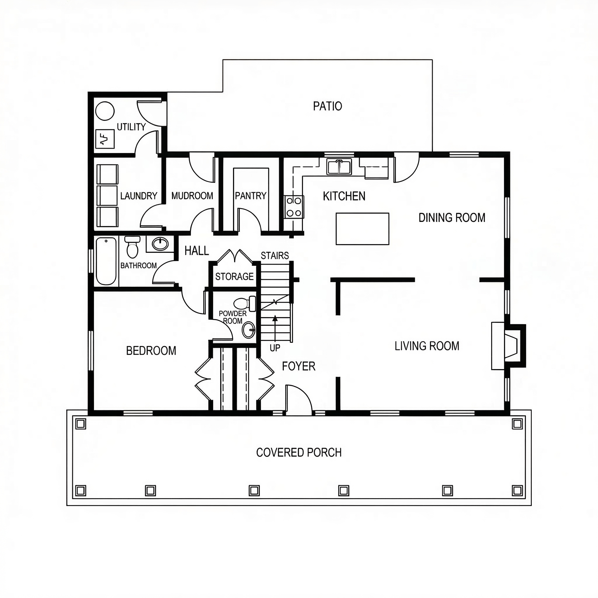
The main floor is scaled at 40 by 30 feet, or about 1,200 square feet. The stair and foyer sit near the center. Living areas occupy the right side. Service rooms line the left and rear. A main-floor bedroom and full bath make this level especially flexible.
The foyer leads into a large living room. The dining room and kitchen connect in an open arrangement at the back right. The pantry, mudroom, laundry, and utility spaces create a neat support zone. A full-width covered porch fronts the house, and a rear patio extends the daily living area. A tidy setup. No nonsense.
- Foyer: approx. 45 sq ft
- Living room: approx. 280 sq ft
- Dining room: approx. 170 sq ft
- Kitchen: approx. 145 sq ft
- Pantry: approx. 35 sq ft
- Mudroom: approx. 45 sq ft
- Laundry: approx. 60 sq ft
- Utility: approx. 30 sq ft
- Hall: approx. 40 sq ft
- Storage: approx. 20 sq ft
- Stairs: approx. 65 sq ft
- Powder room: approx. 20 sq ft
- Bathroom: approx. 50 sq ft
- Main-floor bedroom: approx. 175 sq ft
- Covered porch: approx. 250 sq ft, outdoor
- Patio: approx. 230 sq ft, outdoor
Upper Floor


The upper floor is also scaled at 40 by 30 feet, again about 1,200 square feet. The stairs arrive at a central loft. Bedroom 1 sits to the left. Bedrooms 2 and 3 sit to the front and right. Two bathrooms and two storage rooms keep the plan balanced and efficient.
This level is simple to use. The loft gives the floor a shared central zone instead of a long corridor. That is always a small mercy. Storage rooms at both sides add real utility, not just decorative optimism.
- Loft: approx. 210 sq ft
- Bedroom 1: approx. 200 sq ft
- Bathroom 1: approx. 55 sq ft
- Storage 1: approx. 110 sq ft
- Bedroom 2: approx. 155 sq ft
- Bedroom 3: approx. 160 sq ft
- Bathroom 2: approx. 50 sq ft
- Storage 2: approx. 100 sq ft
- Stairs and landing: approx. 100 sq ft
Table of Contents




