Last updated on · ⓘ How we make our floor plans

This is a compact modern cabin house plan with 924 square feet arranged on a single floor. The design is simple, smart, and very clean in its zoning.

The facade reads as a crisp contemporary cabin. A tall gabled volume is paired with a lower flat-roof wing, creating a sharp but balanced composition. Vertical light-toned wood siding gives warmth, while large black-framed glazing adds contrast and a bit of drama. The roofing appears to combine a dark metal gable roof with a flat secondary roof for the side section.
These floor plans are draft drawings. They are available for download as a printable PDF, which is useful when measuring, marking up ideas, or winning the eternal furniture battle.
- Total area: 924 sq ft
- Bedrooms: 2
- Bathrooms: 1
- Floors: 1
Main Floor


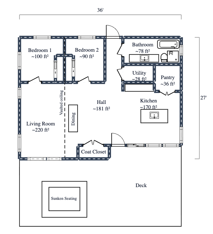
The main floor contains the full 924 sq ft of the house. The layout is centered on a large hall that connects the living room, kitchen, bedrooms, and service spaces. The plan feels open and direct. No labyrinth energy here.
The living room is 221 sq ft and forms the main gathering zone. It sits beside the dining area and benefits from the open feel of the central space. The kitchen is 170 sq ft and includes an island, giving it solid working room without becoming oversized.
- Living Room – 221 sq ft
- Kitchen – 170 sq ft
- Hall – 181 sq ft
- Bedroom 1 – 101 sq ft
- Bedroom 2 – 90 sq ft
- Bathroom – 78 sq ft
- Pantry – 37 sq ft
- Utility – 28 sq ft
- Coat Closet – 21 sq ft
Bedroom 1 and Bedroom 2 are grouped together for a practical sleeping zone. The bathroom, utility room, and pantry are clustered near the kitchen, which keeps the service side efficient and pleasantly sensible. The coat closet sits near the entry for daily convenience. A large exterior deck is also shown off the main level, though its area is not provided in the plan data.
Pin this for later:




Table of Contents




