Last updated on · ⓘ How we make our floor plans

This design is a compact two-story modern cottage. It pairs a simple rectangular plan with a steep gabled form, creating a house that feels crisp, efficient, and quietly stylish.

The facade is clean and restrained. Smooth white render siding gives it a bright, pared-back face, while black window frames add contrast and edge. A natural wood front door and matching porch posts soften the composition. The steep roof uses wood-shingle-style roofing, giving the house a modern cottage character with a touch of old-soul charm.
These floor plan drafts show the working layout of the home and its room arrangement. They are available for download as a printable PDF, which is handy for review, markup, or an overly confident tape-measure session.
Key specs
- Total area: Approx. 1,120 sq. ft.
- Bedrooms: 2
- Bathrooms: 2
- Floors: 2
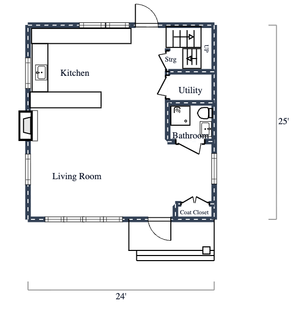
Main Floor

The main floor measures 24′ by 25′, for about 600 sq. ft. The layout is open and compact. The living room and kitchen take the main share of the plan, while the stair and service spaces are grouped on the right. It is efficient and easy to read. No hallway maze, thankfully.
- Living Room: Large open gathering space at the front and left side of the floor.
- Kitchen: U-shaped kitchen with a peninsula and direct access to the rear exterior door.
- Utility: Compact utility room placed beside the stair core.
- Bathroom: Main-floor bathroom with shower, toilet, and sink.
- Coat Closet: Entry closet located near the front door.
- Storage: Small storage room tucked beside the stair.
- Stair: Straight stair rising to the upper level.
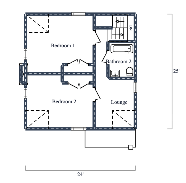
Upper Floor

The upper floor also measures 24′ by 25′, adding about 520 sq. ft. This level is arranged as the private zone of the house. Two bedrooms sit to the left, a lounge occupies the right side, and the bathroom is set near the stair for short, sensible circulation.
- Bedroom 1: Larger bedroom positioned at the upper left corner.
- Bedroom 2: Second bedroom placed at the lower left corner.
- Lounge: Flexible sitting room that can also serve as a study or media nook.
- Bathroom 2: Upper bathroom with tub, toilet, and sink.
- Stair/Landing: Central access point connecting the bedrooms, lounge, and bath.
Pin this for later:

We have more facade options of this design:
Urbane Bronze Color Siding

Switched to Urbane Bronze siding, the facade pivots from quaint to tailored. The steep gable looks crisper, cedar-like shingles warmer, and the black-framed windows go stealth, letting mullions whisper while the pale chimney cap shouts—politely.
That darker skin spotlights the entry: the light wood door and porch posts glow, doing all the peacocking. The slim shed canopy cuts a neater line, and the tiny gable window reads like a set gem instead of a peephole.
Roof shingles pick up warmth, chimney crown stands prouder. Same bones, new mood—serene, refined, a tad mysterious.
Forest Green Siding

Switched to forest green siding, the facade now leans woodland-chic and the horizontal lap boards read sharper. Slim black window frames punch crisp outlines; the big picture window becomes a showcase while the small gable window lands like a tidy period at the top.
The warm wood entry—slatted door, trim, and snug canopy—now glows like a campfire against the cool body color.
Cedar-look shingles and simple dark gutters keep quiet so the green does the talking, with the chimney as a calm exclamation point. Same clean modern-cottage bones, but with moodier charisma and a hint of park ranger swagger.
Deep Red Color Siding

The siding now wears a deep red, flipping the facade from gentle to gutsy. Horizontal boards read crisper, and the simple gable suddenly looks sculpted rather than shy.
Black-framed windows punch through the color like exclamation points, and the chimney stands taller, all business in a cranberry suit.
That richer tone turns the light-wood porch and slatted door into warm highlights, almost lantern-like. Charcoal shingles and the slim canopy trim retreat nicely, letting the red carry the show.
Same tidy form, but the mood is upgraded from cottage whisper to confident hello.
Deep Blue Color Siding

The siding shifts to deep blue, flipping the gabled cottage from cozy to confident. Warm cedar at the porch and door now glows, and the black window grids snap into focus.
The shingled roof reads lighter by contrast, and the chimney suddenly looks sculpted. Think navy blazer—tailored, not timid.
This deeper hue drinks in light, tightening the roofline and sharpening the eaves. The petite upper window becomes a crisp punctuation mark, while the large gridded pane feels like a gallery frame.
The entry recess deepens, spotlighting the vertical door slats and slim sconce. Same bones, bolder swagger.
Dark Grey Siding

The siding shifts to deep charcoal, and the front instantly looks sleeker—like the gabled cottage slipped into evening wear. The steep roof planes and tidy chimney read bolder against it, turning the simple silhouette into a crisp cutout.
With the darker backdrop, the warm wood entry, posts, and slatted door glow as the headliner, while the black‑gridded windows quietly tuck back. Even the slim porch canopy, trim edges, and shingle lines feel sharper, pushing the facade from sweet to sophisticated without moving a single wall.
Table of Contents




