Last updated on · ⓘ How we make our floor plans

This is a two-story courtyard house with a calm, Japanese-inspired layout. The design mixes open communal living with private bedroom wings, all organized around a strong central void.

The facade is disciplined and elegant. It blends modern minimalism with traditional Japanese cues. Smooth light plaster walls pair with warm timber trim and vertical wood screens. Large sliding glass openings keep the elevations airy. Deep overhangs and exposed rafters give the roofline a crisp profile. The roofing appears as dark tile-style panels, low-pitched and neatly composed.
These floor plan drafts are available for download as a printable PDF. Useful for review, markup, and the occasional heroic debate over pantry size.
Key specs:
- Total area: 2,864 sq ft of enclosed interior space
- Bedrooms: 4
- Bathrooms: 3
- Floors: 2
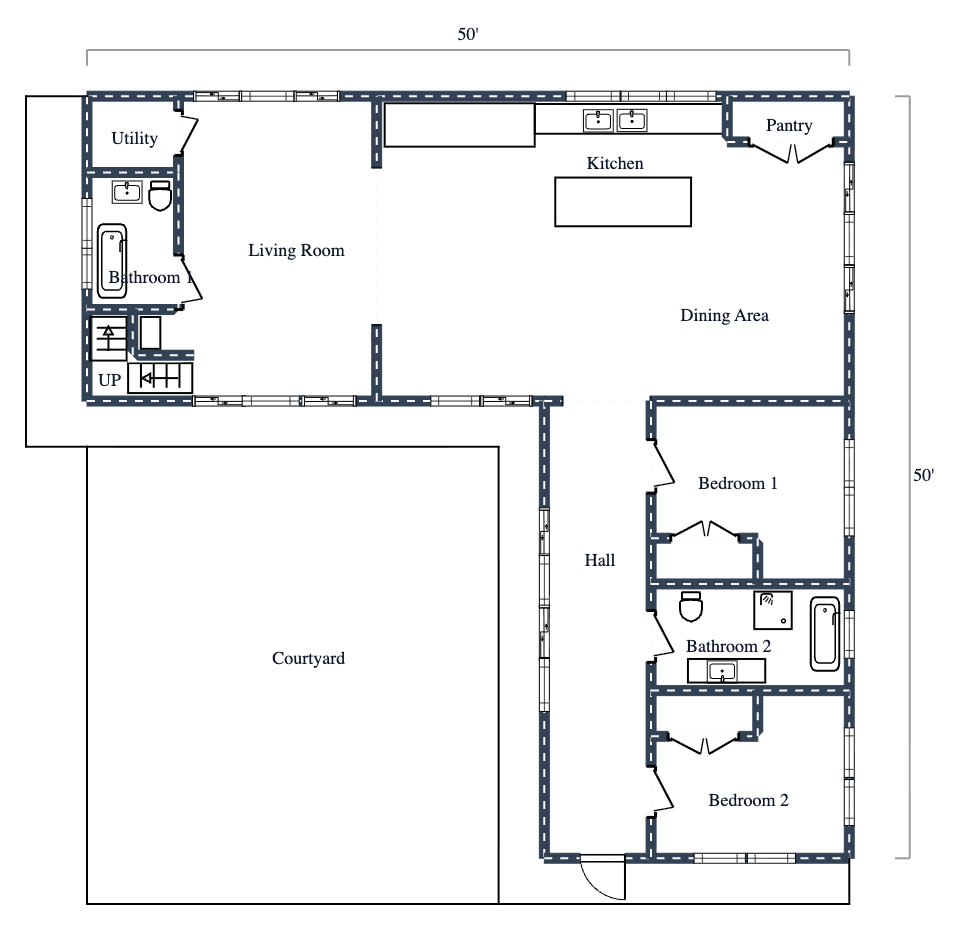
Main Floor

The main floor sits within a 50′ by 50′ overall draft envelope. It uses an L-shaped layout that wraps around a large open courtyard. The social rooms line the top side. The private rooms occupy the right wing. Utility spaces and the stair sit to the left. Clean planning. No maze energy here.
- Living Room: approx. 345 sq ft
- Kitchen: approx. 185 sq ft
- Dining Area: approx. 360 sq ft
- Pantry: approx. 40 sq ft
- Utility: approx. 85 sq ft
- Bathroom: approx. 55 sq ft
- Hall: approx. 135 sq ft
- Bedroom 1: approx. 150 sq ft
- Bathroom 2: approx. 70 sq ft
- Bedroom 2: approx. 150 sq ft
- Stair: approx. 45 sq ft
- Courtyard: open-air center, approx. 880 sq ft
This level is the daily engine of the house. The kitchen, dining area, and living room read as one broad shared zone. The two bedrooms are set apart for more quiet. The courtyard does the heavy lifting in the middle, and it does not even ask for applause.
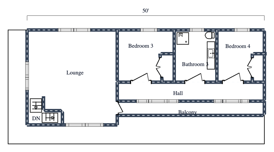
Upper Floor

The upper floor stretches 50 feet across in the draft. Its full depth is not labeled, but the usable plan is compact and efficient at about 895 sq ft of enclosed space. A large lounge fills the left side. Two bedrooms and one bathroom line the right side. A hall connects them and opens to a long balcony.
- Lounge: approx. 390 sq ft
- Bedroom 3: approx. 145 sq ft
- Bathroom 3: approx. 70 sq ft
- Bedroom 4: approx. 145 sq ft
- Hall: approx. 110 sq ft
- Stair/Landing: approx. 35 sq ft
- Balcony: open linear outdoor space, approx. 120 sq ft
This floor is quieter and more retreat-like. The lounge adds a flexible second living zone. The balcony extends the circulation edge and gives the hall a lighter feel. It is a tidy upper level, with just enough flourish to keep things interesting.
Pin this for later:

Table of Contents




