Last updated on · ⓘ How we make our floor plans

A single-story modern ranch that means business. This 1,225 sq ft design distills contemporary living into one clean, confident level — no stairs, no wasted space, no excuses.

The facade is a masterclass in considered contrasts. Vertical tongue-and-groove cedar cladding delivers warmth and texture, set against expansive floor-to-ceiling black-framed glazing that commands the elevation. The roofline is low-pitched and assertive — a dark shed profile with generous overhangs that casts the whole composition in sharp relief. A masonry chimney rises with quiet authority above the roofscape. Stone-clad retaining walls and base courses root the structure firmly to the earth. Black powder-coated steel railings frame the terraced outdoor deck, threading the metalwork together with precision and a touch of theatre.
The floor plans presented here are draft layouts, intended as a design reference and starting point. They are available for download as printable PDF files — ready for your printer, your red pen, and that conversation with your builder you’ve been putting off. Crisp, clear, and entirely yours to mark up.
- Total Area: 1,225 sq ft
- Bedrooms: 1
- Bathrooms: 1
- Floors: 1
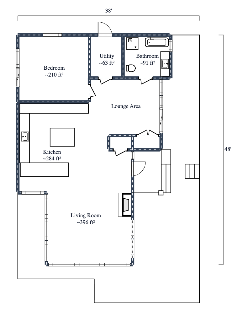
Main Floor — 1,225 sq ft

One floor. One opportunity to get it right. The main floor arranges its rooms across the full 38′ × 48′ footprint in a logical, unhurried sequence — social spaces sprawling openly at the fore, private quarters retreating discreetly to the upper left.
The Living Room anchors the lower portion of the plan at a commanding 397 sq ft. It is, without question, the gravitational center of this home. Immediately beside it, the Kitchen commands 285 sq ft — ample room for anyone who takes cooking seriously, or at least aspires to.
The Lounge Area at 180 sq ft occupies the middle ground between the active kitchen zone and the sleeping quarters. Think of it as the buffer zone — equally suited to conversation, contemplation, or an afternoon nap.
The Bedroom sits at the upper left of the plan, occupying a well-proportioned 210 sq ft. Privacy intact. The Bathroom at 91 sq ft serves efficiently nearby, and the Utility room at 63 sq ft handles all the behind-the-scenes necessities that keep a house running smoothly — unglamorous, indispensable.
Pin this for later:

We have more facade options of this design:
Urbane Bronze Color Siding

With the siding switched to Urbane Bronze, the facade gains a rich charcoal-brown skin that tightens the whole composition. The darker tone spikes contrast with the light stone plinth and chimney, so the corner glass box reads lighter and the long shed roof feels sleeker.
Black frames now blend into the cladding, making mullions whisper.
At the entry recess and vertical boards, the bronze deepens shadows, sharpening rhythm while letting the deck, steps, and pale terraces pop.
Dusk warms the bronze; cloudy days push it moody against the woods—both flatter the glazing. Result: a bolder outline, calmer detailing, and glass that happily hogs the spotlight.
Deep Red Color Siding

The siding switches to a deep red—less whisper, more “hello, I’m home.” The central volume and entry column take on this hue, becoming the facade’s anchor.
Black frames and razor-thin eaves read crisper against it, like ink on a postcard. Vertical boards feel tighter and more rhythmic, boosting the modern stance without getting loud.
That red massing also rebalances everything: the pale stacked-stone base and chimney feel lighter, while the glassy corner looks even more gallery-like. The entry recess now pops, so wayfinding is instant.
Warmth tucks under the slim roof canopy thanks to the color shift, softening the steel-and-stone vibe. Same geometry, fresh swagger.
Deep Blue Color Siding

The siding now dives into a deep blue, replacing the softer tone and snapping the facade into sharper focus. Against the pale stone chimney and terrace walls, the vertical boards read sleek and modern, while the black window frames look positively inked.
The entry volume and long eaves feel tighter, like the house just found its best-tailored blazer.
The new hue intensifies the roof overhang shadows and makes the corner glazing pop like midnight glass. It visually stitches the fascia and trim into a clean ribbon, guiding the eye along the low, linear profile and over the tiered patios.
Small color swap, big swagger—nearby trees may request noncompete clauses.
Black Color Siding

With the siding now black, the facade snaps into crisp contrast. The matte vertical boards sharpen the low shed roof’s shadow line, make the stone chimney and terrace walls pop, and turn the glassy corner into a lantern—hello drama.
It’s architectural eyeliner, and the pavilion suddenly smolders.
The dark cladding also tightens the entry volume, visually thinning the posts and pulling the door recess deeper. Mullions read seamless, the glass rail disappears more, and the stepped stone planters look brighter by comparison.
The house wears a little-black-dress vibe—sleek, anchored, and unapologetically modern.
White Color Siding

Big switch: the facade trades its natural-toned cladding for crisp white vertical siding. The new color cranks up contrast with the black window frames and slim roof fascia, sharpening the low, modern silhouette.
Glass corners read bolder—architectural eyeliner, basically. The entry alcove now announces itself instead of whispering.
Against the pale boards, the stone chimney and base look moodier and more sculpted, while the terrace’s glass rail feels extra airy.
Sunlight bounces off the white planes, thinning the overhangs and brightening the soffits. The vibe shifts from warm cabin to cool gallery—still cozy, just a well-tailored marshmallow beside the woods.
Table of Contents




