Last updated on · ⓘ How we make our floor plans

This design is a compact single-story modern house plan with a clean layout and a total area of 1,176 sq ft.

The facade is crisp and contemporary, with strong gabled forms and expansive black-framed glazing. The architecture leans Nordic in spirit, simple but striking. Vertical wood siding gives the exterior warmth and texture. A dark standing-seam metal roof finishes the composition with sharp, disciplined lines. It is neat, bold, and not the least bit sleepy.
These are floor plan drafts, and they are available for download as a printable PDF. That makes them easy to review, print, and pass around when everyone suddenly becomes a floor plan critic.
- Total area: 1,176 sq ft
- Bedrooms: 2
- Bathrooms: 1
- Floors: 1
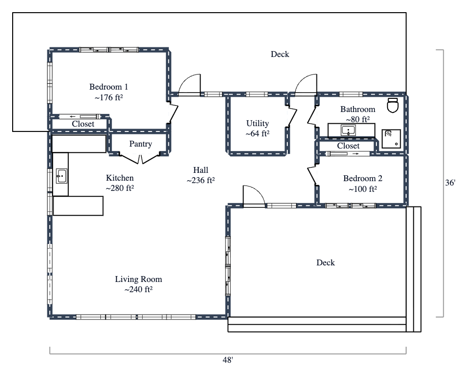
Main Floor


The main floor contains the full 1,176 sq ft of living space. The layout is organized around a large central hall that connects the kitchen, living room, both bedrooms, the bathroom, and the utility room. The plan also shows deck access on two sides, which is always a pleasant little flex.
Kitchen — 280 sq ft. The kitchen sits on the left side of the plan. It is generously sized and arranged beside the main living area for easy day-to-day use. A pantry is also shown adjacent to it.
Living Room — 240 sq ft. The living room is placed at the lower left portion of the floor. It serves as the main gathering area and connects well with the kitchen and hall.
Hall — 236 sq ft. The hall is a major circulation zone in this plan. It is unusually spacious and acts as the central connector for the home.
Bedroom 1 — 176 sq ft. Bedroom 1 is located at the upper left. It is the larger of the two bedrooms and includes a closet.
Bedroom 2 — 100 sq ft. Bedroom 2 is positioned on the right side of the plan. It also includes a closet and sits close to the bathroom.
Bathroom — 80 sq ft. The bathroom is placed at the upper right. It is compact but practical, with the usual fixtures shown on the draft.
Utility — 64 sq ft. The utility room sits near the center-right of the layout. It is well placed for laundry, storage, or household equipment.
Additional spaces. The drawing also shows a pantry, closets, and two deck areas.
We have more facade options of this design:
Beige Stone Foundation

The big change is the foundation, now finished in beige stone, and it gives the facade a warmer, sun-baked footing. That lighter base softens the crisp black-framed glazing and vertical timber cladding, so the whole front feels less stern and a bit more lakeside-chic.
With the beige stone running along the lower walls and terrace edge, the house gets a sturdier, more textured plinth—like it finally found the right shoes. It also brightens the composition under the dark metal roof and sharp gable lines, making the facade read cleaner, calmer, and more inviting.
Urbane Bronze Siding

The big change is the siding: it’s now Urbane Bronze, and the whole facade instantly feels richer, moodier, and a touch more tailored. That deeper tone sharpens the clean vertical cladding, makes the black-framed glazing pop, and gives the front gable a more sculpted presence—like the house put on its fancy outdoor jacket.
With that darker skin, the oversized triangular window wall reads even more dramatically, and the broad sliding doors feel sleeker against the facade. The standing-seam metal roof still crowns the simple cabin-like form, but the Urbane Bronze siding gives the geometry more punch and makes the lakeside modernism look extra crisp, without trying too hard.
Deep Red Siding

The big change is the siding: it’s now a deep red, and the whole facade suddenly has a richer, punchier attitude. Against the crisp black standing-seam roof and slim black window frames, that color makes the gabled form look sharper, bolder, and just a little smug in the best way.
That new deep red also gives the tall triangular glass wall more drama, turning the front elevation into a clean Nordic-style composition with extra warmth. Paired with the pale timber deck and simple lines, the facade feels more vivid and sculpted—like the house finally found its favorite jacket.
Deep Blue Siding

The big change is the deep blue siding, and it completely rewires the facade. It gives the vertical cladding a sharper, moodier punch, making the black window frames and dark metal roof look extra crisp—like the house put on its fancy lake jacket.
That richer blue also makes the gabled front feel more sculpted, especially around the tall triangular glazing and broad glass walls. Against the pale wood deck and light foundation edge, the facade now lands with cool Nordic drama; calm, clean, and just a tiny bit smug about it.
Black Color Siding

The big change is the siding turning black, and it gives the facade a sharper, moodier edge right away. The vertical cladding now makes the simple gabled volumes look even cleaner, while the huge triangular window wall pops like it knows it’s the star.
With the black skin, the dark metal roof and slim window frames feel more unified, almost stealth-cabin chic. Against the pale timber deck and rocky lakeside setting, the facade now has stronger contrast and a bit more drama—without throwing a tantrum.
White Siding

The big change is the white siding, and it completely sharpens the facade. Its crisp vertical boards make the house feel brighter, cleaner, and a bit more dressed up, while the dark metal roof and black trim suddenly look extra bold—like they put on their good jacket.
That lighter skin also makes the front gable and its tall triangular window wall stand out with more drama. The broad glazing, slim black frames, and simple lakeside deck now read even more clearly against the white exterior, giving the whole facade a fresh Nordic snap.
Pin this for later:




Table of Contents




