Last updated on · ⓘ How we make our floor plans

This is a compact two-story Craftsman-style house plan with 1,638 sq ft of total living area. It is tidy, practical, and not trying to win a maze contest.
The facade uses classic Craftsman proportions with a deep covered front porch, tapered columns, stone pier bases, and crisp white trim. The exterior combines horizontal siding with shingle-style siding in the upper gable. The roof is a gabled composition with broad overhangs and bracket accents, giving the home a sturdy, cheerful face.
These floor plan drafts are available for download as printable PDF files. Handy for reviewing, marking up, and gently arguing over furniture placement.
- Total area: 1,638 sq ft
- Bedrooms: 2
- Bathrooms: 2
- Floors: 2
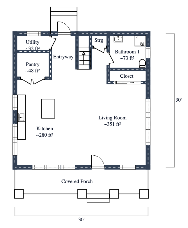
Main Floor

The main floor covers 914 sq ft. The layout is open and efficient, with the kitchen and living room forming the main shared zone. The entryway sits near the stair core, while utility and pantry spaces support the kitchen. Simple flow. No drama.
- Kitchen: 280 sq ft
- Living Room: 352 sq ft
- Entryway: 130 sq ft
- Bathroom 1: 73 sq ft
- Pantry: 48 sq ft
- Utility: 32 sq ft
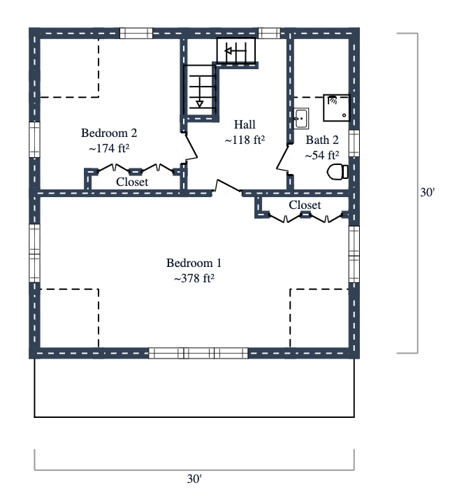
Upper Floor

The upper floor provides 724 sq ft. It is arranged around a central hall, with two bedrooms and a full bathroom. Bedroom 1 takes the largest share of the level, offering a spacious private area. Bedroom 2 is more compact but still sensible. The hall keeps circulation clear and civilized.
- Bedroom 1: 378 sq ft
- Bedroom 2: 175 sq ft
- Hall: 118 sq ft
- Bath 2: 54 sq ft
We have more facade options of this design:
Urbane Bronze Siding

The big change is the siding in Urbane Bronze, and it completely shifts the facade into a richer, moodier lane. That deep, earthy tone makes the front gable, shake cladding, and lower wall planes feel more tailored, while the crisp white trim suddenly pops like it knows it’s on stage.
With the new bronze skin, the cottage’s Craftsman bones read even stronger: the broad porch, chunky tapered columns on stone bases, and centered wood door all look sharper and more grounded. The multi-pane windows feel brighter against the darker facade, and the whole front elevation gets a cozy-but-polished vibe—basically the house put on a very good jacket.
Deep Red Siding

The big change is the deep red siding, and it gives the facade a richer, more storybook punch. It makes the white trim, chunky porch columns, and gable brackets pop with crisp contrast, while the front door’s warm wood tone suddenly looks even more dapper—like it knew this glow-up was coming.
That deeper color also sharpens the cottage character of the house. The upper gable feels more pronounced, the multi-pane windows read cleaner, and the stone porch bases look sturdier against the darker cladding.
Even the broad front porch seems cozier now; the facade went from sweet to a little bit spicy.
Deep Blue Siding

The big change is the deep blue siding, and it completely recasts the facade. It gives the Craftsman front a cooler, richer attitude, making the crisp white trim, window casings, and chunky gable brackets pop like they finally had their coffee.
That darker blue also adds welcome depth to the broad front porch, where the tapered columns on stone bases feel more grounded and graphic. Paired with the warm wood entry door and the neatly framed upper gable windows, the whole exterior looks sharper, moodier, and a little more dressed up without getting fussy.
Black Board Siding

The biggest shift is the new black board siding, which gives the facade a sharper, moodier cottage look. It turns the front elevation from sweet to crisp, making the white trim, porch rails, and chunky tapered columns pop like they dressed for the occasion.
That darker cladding also adds more drama to the tall front gable, drawing extra attention to the centered upper windows and the neat roof brackets tucked under the eaves. Against the stone porch bases and warm wood front door, the black boards create a handsome contrast—just enough edge, without the house trying too hard to be mysterious.
White Board and Batten Siding

The big change is the new white board-and-batten siding, and it completely sharpens the facade. It gives the cottage a cleaner, brighter farmhouse spin, making the tall front gable feel more crisp and upright—like it finally stood up straight for picture day.
With that fresh vertical rhythm, the white trim, divided windows, and chunky porch columns pop even more. The warm wood front door now reads richer against the pale cladding, while the stone porch bases keep the whole face grounded so it does not float off looking too angelic.
Pin this for later:

Table of Contents




