Last updated on · ⓘ How we make our floor plans

This is a compact two-story modern house plan with 1,259 square feet of living space. The design is clean, efficient, and clearly split between open daily living below and private sleeping space above.

The facade is sharply minimalist. It uses a crisp box-shaped form, large dark-framed windows, and deep openings for a bold contemporary face. The siding reads as smooth dark cladding, giving the exterior a monolithic look. The roof is flat or very low-slope, concealed behind clean parapet-like edges. Sleek. Severe. Quite stylish.
These floor plans are draft drawings. They are available for download as a printable PDF, which makes reviewing, printing, and scribbling notes delightfully easy.
- Total area: 1,259 sq ft
- Bedrooms: 2
- Bathrooms: 3
- Floors: 2
Main Floor

The main floor contains 586 square feet. The layout is open and straightforward. The living room and kitchen form the core, while the pantry, mudroom, bathroom, and stair are grouped neatly to one side.
- Living Room: 224 sq ft
- Kitchen: 145 sq ft
- Pantry: 45 sq ft
- Bathroom: 61 sq ft
- Mudroom: 36 sq ft
The living room is the largest space on this level and acts as the main gathering area. The kitchen sits beside it for easy flow. The pantry is a useful bonus, not just a decorative cupboard with ambition. The mudroom adds practical everyday function, and the full bathroom on this floor improves flexibility.
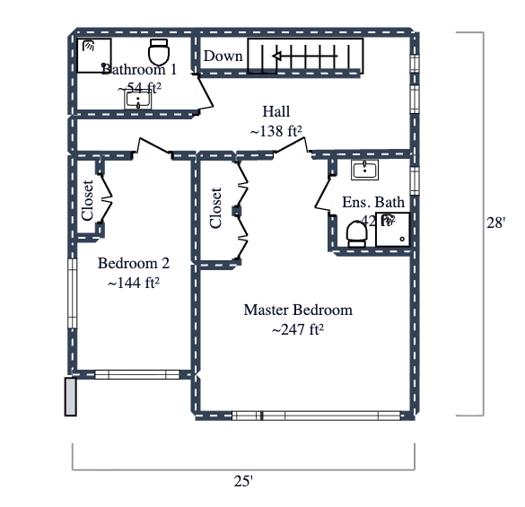
Upper Floor

The upper floor offers 673 square feet. This level is arranged as the private zone. A central hall links the bedrooms and bathrooms, with the stair landing feeding into the circulation area for a calm and orderly layout.
- Master Bedroom: 247 sq ft
- Ens. Bath: 42 sq ft
- Bedroom 2: 144 sq ft
- Bathroom 1: 54 sq ft
- Hall: 138 sq ft
The master bedroom is the largest room upstairs and connects directly to the ensuite bath. Bedroom 2 is also well-sized. A second bathroom serves the floor, and closet storage is shown off the bedroom areas. The hall is notably generous, which helps the upper floor feel airy rather than pinched.
We have more facade options of this design:
Black Marble Siding with Gold Veins

The big change is the siding: the facade is now wrapped in black marble streaked with gold veins, and it completely rewires the house’s mood. What was a clean modern box now looks sharper, richer, and a little bit dramatic—in a good way, like it knows it is the best-dressed building on the block.
That glossy stone skin makes the crisp geometry feel even more precise, especially around the deep window openings and the cantilevered upper volume.
The dark-framed glazing pops harder against the marble, while the recessed ground floor reads more shadowy and sleek. Even the simple entry and deck feel elevated now; the whole facade has gone from minimalist to deliciously extra.
Black Burnt Oak Board Siding

The big change is the black burnt oak board siding, and it completely rewires the facade. Its charred texture gives the clean boxy volume a smoky, tactile skin, while the horizontal planks sharpen the long lines and make the whole house look extra crisp—like it dressed in formalwear and meant it.
That dark cladding also changes how the openings read: the black-framed windows feel more carved than applied, especially at the corner glazing and the recessed ground floor. The cantilevered upper level lands with more drama, the entry niche looks deeper, and the facade now has that moody, modern bite that says “minimal,” but with a tiny villain grin.
Black Slate Siding

The big change is the black slate siding, and it completely recasts the facade into a crisp, moody monolith. Its staggered rectangular pattern gives the boxy volume more texture and depth, so the simple massing feels sharper, cooler, and just a little bit dramatic—in a good way.
With that darker skin, the large corner windows and slim black frames read even bolder, almost carved out of the facade. The recessed ground-floor glazing, deep openings, and clean roofline now feel more sculptural, while the front deck and steps quietly support the whole “modern black box” attitude without stealing the scene.
Black Stone Siding

The big change is the siding: it’s now wrapped in black stone, and that move completely rewires the facade. The rough, stacked texture gives the clean boxy form a heavier, moodier bite, turning the simple volume into something sharp and monolithic—like a very stylish fortress that drinks espresso.
That dark stone also makes the black-framed windows feel deeper and more carved in, especially on the upper level where the corners read extra crisp. Against the broad glass at the ground floor, the facade gets a strong push-pull between solid and transparent, while the stone-clad terrace and steps tie the whole front together with a cool, slightly dramatic stomp.
Black Board and Batten Siding

The biggest change is the new black board-and-batten siding, and it totally rewires the facade. The vertical rhythm makes the house feel taller, sharper, and more sculpted, while the matte dark finish gives the simple gabled form a bold, almost stealth-mode presence.
With that switch, the windows pop harder against the facade, especially the large upper corner glazing and the tall openings below. The recessed entry and deck edge now read deeper and crisper, so the whole front feels cleaner, moodier, and a bit more dramatic—in a very well-dressed way.
Pin this for later:


Table of Contents




