Last updated on · ⓘ How we make our floor plans

A compact, single-story ranch that proves you don’t need multiple floors to make a statement. Clean lines, smart zoning, and a layout that simply works — this 1,195 sq ft home is efficiency done right.

The facade carries that distinctly mid-century modern ranch character with confidence. Vertical board-and-batten siding in a muted sage green runs across the upper portion, while a light natural stone base anchors the structure with quiet authority. Warm walnut-toned wood frames the entry door and windows, adding richness against the cool green.
The roofline is a low-pitched shed design — asymmetrical, deliberate, and undeniably stylish — capped with a deep brown fascia that ties the whole composition together. A wide single-car garage sits flush to the right, integrated seamlessly rather than tacked on as an afterthought.
These floor plans are draft layouts, ready to be taken further. They are available for download as print-ready PDF files — perfect for sharing with your builder, your architect, or that one friend who insists on having opinions about everything.
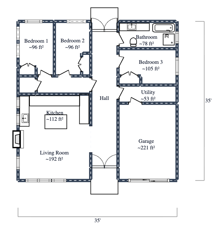
- Total Area: 1,195 sq ft
- Bedrooms: 3
- Bathrooms: 1
- Floors: 1
- Garage
Main Floor — 1,195 sq ft


Everything lives on one level. No stairs, no excuses. The layout divides neatly into a social zone on the left and a private sleeping wing toward the upper right, with the garage and utility tucked along the far right edge. A generous central hall stitches it all together.
The Living Room at 192 sq ft is the social heart of the home — roomy enough to host a crowd, or to pretend you might someday. Adjacent, the Kitchen at 112 sq ft keeps things practical and well-positioned, connecting easily to both the living area and the hall.
The sleeping wing holds three bedrooms. Bedroom 1 and Bedroom 2 mirror each other at 96 sq ft each — tidy, efficient, no complaints. Bedroom 3 steps up slightly at 105 sq ft, offering just a touch more breathing room. The shared Bathroom at 78 sq ft serves all three, and while sharing is caring, early risers may want to negotiate house rules.
The Hall at 180 sq ft is notably generous — more than a corridor, it functions as a true circulation hub connecting all zones. The Utility room at 53 sq ft handles the unglamorous but essential, and the Garage at 221 sq ft rounds things out with solid, practical square footage.
Pin this for later:


We have more facade options of this design:
Urbane Bronze Siding

Switching the siding to Urbane Bronze transforms the facade into a deep, warm backdrop that sharpens every line. The vertical boards carve stronger shadows, the intersecting shed roofs look crisper, and the wood-framed entry and clerestory pop like lit stage props.
The pale stone base and chimney now read brighter, while the garage face tucks in with a calm hush.
This moodier skin also grounds the low-slung midcentury silhouette, slimming the eaves and tightening the fascia. Asymmetry feels bolder; the offset entry and big panes get a clean, dramatic frame.
Hardware and mullions read razor‑sharp. Urbane Bronze is basically a tailored suit for this house—sleek, confident, a little smug about those rooflines.
Grey Color Siding

The big change: the house wears grey siding now. The cool tone sharpens the midcentury shed roofs and the clerestory wedge at the entry, while the vertical boards read cleaner.
Warm wood window and door frames glow brighter against it, and the pale ledgestone base pops, chimney included. Black sconces and address numbers get bolder, almost smug.
Matching the garage door to the same grey quiets that mass and lets the glazed double entry star. Mullions and transom lines feel tidier, the horizontal stone banding steadier.
With the darker field under the broad eaves and fascia, the silhouette looks slimmer and more aerodynamic—like the facade put on a tailored suit and discovered cheekbones.
Deep Red Color Siding

Swapping the siding to deep red recasts the facade’s whole attitude—like the house finally found its lipstick. The vertical boards read bolder, the low-slung shed roofs feel sharper, and the high clerestory becomes a clear exclamation point over the entry.
The color also remixes the contrasts: the natural-wood door and window frames glow warmer, the pale stone wainscot looks brighter, and the muted sage garage door turns into a calm counterweight. Net effect: the asymmetry tightens into a crisp, mid-century poster—less whisper, more headline.
Deep Blue Siding

The siding now wears a deep blue, snapping the midcentury profile into focus like a fresh blazer. It sharpens the low, opposing shed roofs and makes the warm wood windows and glassy entry door pop, while the pale stone base reads sturdier and more architectural.
That darker coat amplifies the vertical board-and-batten rhythm and visually tucks the garage door into the plane, letting the clerestory steal the spotlight. Eaves look crisper against the sky, the chimney feels more sculpted, and the dark sconces and house numbers suddenly act like they’ve got stage lighting—subtle swagger achieved.
Yellow Siding

The siding just switched to a sunny yellow, and the whole facade perks up like it had a double espresso.
Against the single sloped roof with dark fascia, the color crisps the silhouette and brightens the clerestory slice above the entry. Vertical boards read sharper, their battens casting neat little shadows, and the garage door—now color-matched—melts into the plane instead of announcing itself.
That zesty hue also spotlights the warm wood window frames and the grid-paneled double doors, making their amber tone look curated, not coincidental. The pale stone wainscot cools the palette below, like a steadying belt under a cheerful shirt.
Black sconces and numbers pop as clean punctuation. Mid‑century calm, now with lemon zest.
Table of Contents




