Last updated on · ⓘ How we make our floor plans

This is a modern four-level house design with a garage, broad family spaces, five bedrooms, and a rooftop leisure level. The plan is vertical, tidy, and clearly zoned.

The facade is crisp and geometric. Warm brick cladding is paired with smooth light-toned wall bands and vertical timber-look screens. Large glazed openings, glass balcony rails, and a rooftop pergola give the front a polished, contemporary face. The roof is flat, concealed behind parapets, which keeps the whole composition sharp and composed.
These floor plans are draft drawings. They are available for download as a printable PDF, which is quite handy for review, markup, and the timeless question of where the sofa should really go.
- Total area: Approx. 3,918 sq ft
- Bedrooms: 5
- Bathrooms: 3
- Floors: 4
First Floor

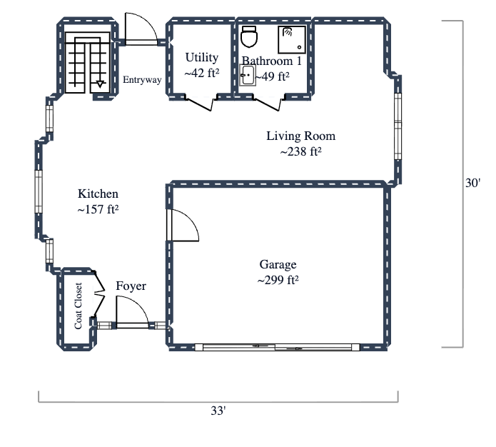
The first floor spans 33′ by 30′. The layout places the entry sequence and kitchen to the left, living space toward the rear, utility and bath near the stair, and a large garage on the right. It is practical and well behaved.
- Foyer
- Kitchen – approx. 157 sq ft
- Living Room – approx. 238 sq ft
- Entryway – area not marked
- Utility – approx. 42 sq ft
- Bathroom 1 – approx. 49 sq ft
- Garage – approx. 299 sq ft
Second Floor
The second floor spans 32′ by 34′. A very large lounge fills the left side. The bedrooms sit to the right, with the bathroom placed centrally near the stair. The master suite opens to the balcony. Nicely balanced. Slightly spoiled, in a good way.
- Lounge 1 – approx. 316 sq ft
- Bathroom 2 – approx. 63 sq ft
- Bedroom 2 – approx. 175 sq ft
- Master Bedroom – approx. 277 sq ft
- Balcony
Third Floor

The third floor also spans 32′ by 34′. This level is arranged as a bedroom floor around a central hall. Bathroom 3 sits close to the stair. Bedroom 4 faces the balcony, Bedroom 3 has strong proportions, and Bedroom 5 occupies the left side with its own closet. A proper sleeping floor. No nonsense.
- Hall – area not marked
- Bathroom 3 – approx. 63 sq ft
- Bedroom 3 – approx. 175 sq ft
- Bedroom 4 – approx. 277 sq ft
- Bedroom 5 – approx. 220 sq ft
- Balcony – area not marked
Rooftop

The rooftop level spans 31′ by 34′. The stair arrives at a central pavilion, with one terrace at the back and another at the front. The arrangement is simple and effective. Shade in the middle. Open air at both ends. Very hard to dislike.
- Rooftop Pavilion
- Rooftop Terraces
Pin this for later:

We have more facade options of this design:
Black Siding with LED Lighting

The facade now wears matte-black vertical siding, tightening the massing and crisping the edges. Slim LED ribbons trace the roofline, balcony rims, and window reveals, sketching the stacked volumes like a neon blueprint.
Broods by day, glows by night—dark chic activated.
The lighting turns details into features: rim-lit glass balustrades float, shadow gaps deepen, and the pergola becomes a luminous frame.
Vertical light blades echo the cladding seams to elongate the height, while a soft wash at the entry and garage grounds the base. Same bones, sharper suit.
Living Wall Sections

The facade now wears living wall sections that thread through the sanded-brick frames and pale panel piers, wrapping corners and balcony aprons.
Planters are integrated into sills and guardrails, so glass balustrades sit slightly behind a soft green edge. Slatted timber screens peek through the foliage, and the rooftop pergola suddenly feels like a trellis you could high-five.
These green inserts thicken the frames, deepen shadows, and mellow the boxy massing without muting the big sliders. Privacy improves while views stay generous—stealth mode, but leafy.
A planted ribbon runs from entry steps to upper terraces, visually stitching the stack together. Same modern shell, now moonlighting as a vertical pocket park.
Two-Tone Grey and Deep Blue Facade

Swapping the former uniform cladding for alternating grey panels and deep‑blue wraps, the facade now reads as stacked volumes instead of one big block.
The blue boxes punch out to frame the main balconies, while smooth grey bands anchor the corners and midsections. Glass railings and broad sliders sit crisper against this two‑tone canvas.
The color shift also spotlights details: timber slat screens glow warmer against blue, and the rooftop pergola looks airier perched on grey.
Shadows deepen inside those blue recesses, sharpening lines and making the massing feel slimmer—diet by paint, basically. Even the garage surround and planter walls tie into the grey, letting the blue do the showboating.
Red Brick Accent Sections

Red brick sections were added, slicing through the once all-cream facade. They now wrap corners, frame window bays, and box the balconies—sharper geometry, warmer attitude.
Glass rails and wide sliders snap into focus against the brick, like precise trim on a well-cut suit.
Brick now stitches the stack from garage to roof terrace, giving the masses a tidy, readable rhythm. Timber slat screens pop brighter, and the pergola feels purpose-built, not plopped. More texture, more depth; same cool bones, extra charm.
Black-and-White Color Blocking

The facade now splits into bold black and crisp white sections—goodbye monotone, hello architectural tuxedo. Black brick wraps the upper volumes and deep window recesses, sharpening shadows and giving the balconies extra punch.
Thick white frames box out the terraces and cantilevers, making the glass rails read cleaner and more precise.
This contrast resets the rhythm: black planes tuck behind vertical timber screens, while white bands outline each level like picture frames.
The pergola and slatted panels pop warmer against the two-tone skin, almost winking at passersby. Net effect: clarified massing, louder lines, and a crisp, graphic street face.
Table of Contents




