Last updated on · ⓘ How we make our floor plans

This design is a compact modern cabin with a one-bedroom, one-bath layout on a single level. It is efficient, clean, and neatly composed.
The facade uses a sharp contemporary cabin vocabulary with a modern mountain feel. A bold single-slope roof gives the house its strong profile. Dark horizontal siding wraps the exterior, balanced by warm timber posts, beams, and soffits. Large glazed openings and clerestory windows brighten the front elevation. The roofing reads as a low-slope metal system, tidy and durable.
These floor plan drafts are prepared as layout studies and planning references. They are also available for download as a printable PDF, which remains gloriously useful when paper decides to be the hero.
Key specs
- Total area: Approx. 306 sq ft
- Bedrooms: 1
- Bathrooms: 1
- Floors: 1
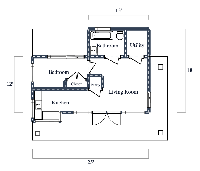
Main Floor


The main floor uses an efficient L-shaped footprint. At its largest points, it measures 25 feet wide by 18 feet deep. That works out to about 306 square feet of livable space. Small footprint. Smart attitude. Also, look at all the outdoor living space potential.
The front entry opens directly into the living room. The kitchen sits at the front left. The bedroom is placed on the left side for a bit more privacy. The bathroom and utility room line the rear. A pantry and closet sit near the center, keeping circulation tight and waste low.
- Living Room: Central gathering space. Entered from the front doors. It connects to all major rooms.
- Kitchen: Front-left corner. Compact L-shaped counter layout. Practical and direct.
- Bedroom: Left side of the plan. Quietly tucked away from the main living area.
- Closet: Positioned between the bedroom and living zone. Small, but loyal.
- Pantry: Near the center of the layout. Handy for kitchen overflow and daily storage.
- Bathroom: Rear middle. Includes a tub, toilet, and sink.
- Utility: Rear right. Dedicated service space for laundry, storage, or mechanical use.
We have more facade options of this design:
White Siding

Big change: the siding is now bright white, and the whole facade snaps to attention. Against that clean skin, the black-framed glazing, twin French doors, and clerestory windows read bolder, while the exposed timber posts and soffits glow warmer.
The sloped single-shed roof feels crisper, and the dark wraparound deck looks deeper by contrast—like the house put on a fresh T‑shirt and suddenly found its jawline.
White also sharpens the horizontal lap lines, simplifying the elevations into clear bands beneath the long eaves. It turns the front wall into a light reflector for the overhang’s downlights, lifts the porch zone visually, and recasts the compact footprint as a modern pavilion rather than a rustic hut.
Same bones, new vibe: brighter, cleaner, and delightfully high-contrast.
Bronze Color Siding

The siding shifts to a deep bronze, trading rustic wood tone for sleek metallic warmth. It sharpens the horizontal paneling and pops against the charcoal window and door frames.
Timber posts and soffits read richer beside it—like they got a golden-hour upgrade that never clocks out.
Bronze also recasts the front: the long shed roof feels crisper, the clerestory band reads more continuous, and the entry terrace suddenly headlines the show.
Recessed eave lights now wash the metal with a soft glow, turning the facade into a quiet lantern after dusk. Same geometry, new attitude—modern cabin meets tasteful bling.
Forest Green Siding

The facade now wears forest green siding, and the shift is bold. Black window and door frames snap into focus against the darker field, while the warm timber posts and soffits glow like trim on a well-tailored jacket.
Horizontal lap lines read crisper, giving the compact form extra rhythm. Same shape, new attitude.
This color grounds the mass and makes the single-slope roof feel sleeker. The clerestory band pops more, turning the upper glazing into a clean graphic stripe.
Charcoal deck and fascia read as one continuous plinth, neatly lifting the box. Stealthy by day, lantern by night—no cape required.
Red Color Siding

The facade now wears deep red siding, swapping its former neutrality for a bolder, warmer skin. The crimson intensifies the lap boards’ horizontal rhythm and makes the black-framed glazing snap under the long shed roof.
Blond posts and beams pop like exclamation points, giving the porch surprising star power.
With the darker cladding, the clerestory strip reads crisper and the big glass doors look sleeker—practically in tuxedos. The deck skirt recedes, letting the box float a touch while the roofline feels more aerodynamic.
Net effect: quiet modern upgraded to mountain-modern with a heartbeat.
All-Natural Wood Siding

The facade now wears all‑natural wood siding, unifying the porch, posts, and side returns. Horizontal boards amplify the low, linear profile beneath the single‑slope roof, while the black‑framed glazing and twin doors pop against the honeyed backdrop.
Matching wood in the deep soffit makes the overhang feel carved-in, not clipped-on.
With the new skin, the clerestory strip above the doors glows warmly at dusk, helped by recessed eave lights. The corner window and tall panes read as crisp dark cutouts, and the deck visually merges with the wall—less porch, more stage.
Same clean geometry, now modern cabin with a grin; it looks like it got a very tasteful tan.
Table of Contents




