Last updated on · ⓘ How we make our floor plans

This design is a sleek two-story modern house with a near-square footprint, an open social core, and a practical bedroom split across both levels.

The facade is crisp and minimalist. Strong horizontal lines, deep overhangs, and full-height glazing give it a refined modern character. The exterior appears finished in smooth white render or stucco, paired with slim dark metal window frames and glass balcony railings. The roof is flat, likely concealed behind a clean parapet, which keeps the profile sharp and disciplined.
These floor plan drafts are available for download as a printable PDF. They are easy to review, easy to print, and much less dramatic than a contractor with a red pen.
- Total area: 2,723 sq ft
- Bedrooms: 4
- Bathrooms: 3
- Floors: 2
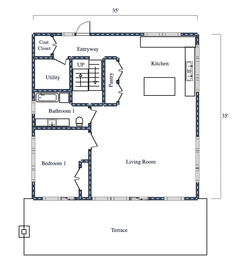
Main Floor


The main floor measures about 35′ by 35′, giving roughly 1,225 sq ft of interior space. The layout is centered around the stair and pantry. Open living space fills the right side. Service rooms and the ground-floor bedroom sit to the left. A large terrace runs along the rear, which is a very nice habit.
Approximate interior area: 1,225 sq ft.
- Entryway
- Coat closet
- Central stair
- Utility room
- Bathroom 1 with tub, vanity, and toilet
- Pantry
- Kitchen with island
- Living room
- Bedroom 1
- Terrace
The kitchen and living room form one broad open zone, so the level feels airy and direct. Bedroom 1 sits apart from the main gathering area, which adds privacy for guests or for anyone who enjoys peace and doors.
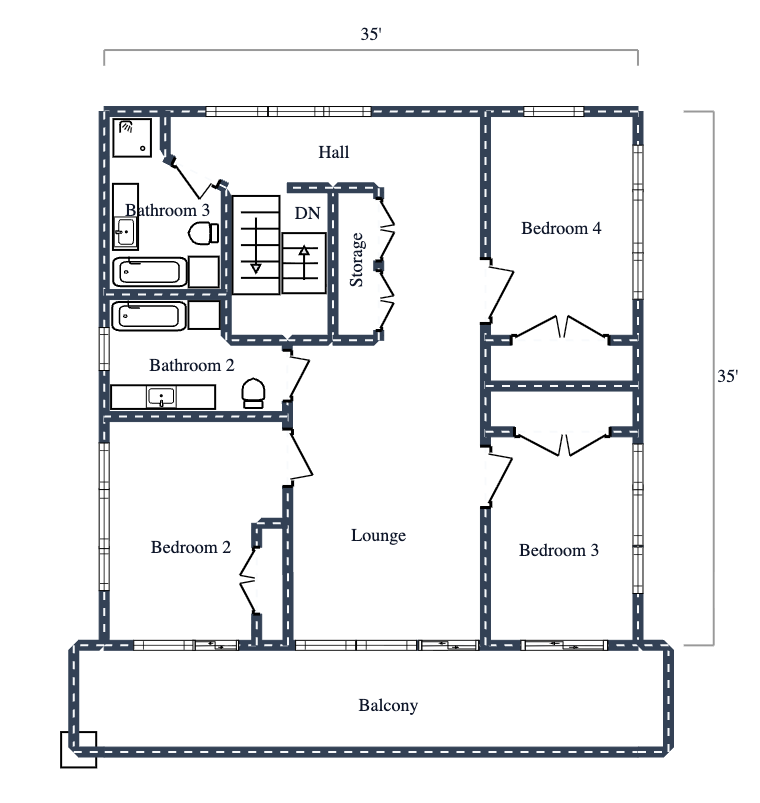
Upper Floor


The upper floor also measures about 35′ by 35′, adding another 1,225 sq ft. The stair arrives at a central hall and lounge. Three bedrooms are arranged around the perimeter. The bathrooms and storage are grouped near the stair for an efficient plan with very little wasted motion.
Approximate interior area: 1,498 sq ft.
- Hall
- Stair landing
- Storage room
- Lounge
- Bathroom 2 with tub, vanity, and toilet
- Bathroom 3 with shower, tub, vanity, and toilet
- Bedroom 2
- Bedroom 3
- Bedroom 4
- Closet storage between Bedrooms 3 and 4
- Balcony
The lounge gives this level a shared family zone instead of a simple corridor plan. Bedroom 2 sits on the left, while Bedrooms 3 and 4 occupy the right side. The full-width balcony extends the front edge of the house and gives the upper floor a bold, polished finish.
Pin this for later:


We have more facade options of this design:
White Siding with Bronze Accents

Switched to white siding with bronze sections, the facade suddenly snaps. Bronze now wraps corners and the balcony recess, crisply framing the wide glazing. LED glow-lines trace these junctions, so the metal winks at dusk.
Bronze bands deepen the reveals and set a stronger vertical rhythm, while the white fields keep the two-story mass light.
The glass balustrade reads cleaner, and the dark window frames pop like precise eyeliner. Net effect: modern cube in a crisp shirt with bronze cufflinks—quiet flex.
White Marble Siding with Black Marble Sections

Swapped-in white marble siding, now mixed with bold black marble sections, transforms the facade. Black slabs wrap the piers and run as a crisp belt between the two floors, boxing the glazing and balcony.
White marble crowns the roof edge and corner volumes, sharpening the cubes. Under the linear soffit lights, the scheme reads like a marble tux—bow tie on backorder.
These new dark inserts deepen shadow lines and make the upper level look like it’s floating above the terrace. Frames dissolve where glass meets black stone, while the white planes bounce pool light and echo the pale steps.
Even the balcony and lintels seem slimmer thanks to the two-tone trickery. Net effect: a punchier, gallery-clean elevation that knows it looks good and isn’t shy about it.
Black Siding with LED Accent Lighting

Swapped for deep-black siding and lined with LEDs, the facade now reads like a sleek night suit. Matte panels form tidy modules, while warm strips tuck under the roof and balcony slabs; vertical glows sit between the full-height windows so the glass balustrades almost disappear.
The result: edges sharpen, shadows deepen, drama cranks up.
The LEDs choreograph the geometry—tracing long horizontals, punctuating the slender pilasters, and outlining the wide openings—so the boxy volume feels lighter, almost floating. Flush seams keep the light unbroken, making the glazing glow like panels in a gallery; at dusk the upper terrace practically turns into a hoverboard.
Limestone Siding

Big change first: the facade is now wrapped in limestone, trading sleek uniformity for warm, honed stone panels with subtle veining.
The crisp coursing sharpens the boxy volumes, gives the parapet and balcony edges a stone “shelf” look, and deepens the contrast against the thin, black-framed glazing. Corners feel sturdier, joints read like a quiet grid, and the whole house suddenly has museum poise—without the velvet ropes.
The limestone also makes the lighting do new tricks: continuous LED ribbons graze the stone and pull out texture instead of just gloss.
Glass balustrades appear lighter against the creamy blocks, and the tall window bays look more like carefully carved openings than simple cutouts. Same modern geometry, but with a timeless suit—tailored, stony, and a little smug about it.
White Siding with Stone Sections

Switched to crisp white siding with stone sections, the facade now looks brighter and more textured. White planes sharpen the flat-roofed volumes, while stone-wrapped piers ground the terraces like classy anchors.
Black window frames hit harder against the pale skin, and the stone returns at corners add depth under those sleek overhangs.
Where smooth uniform cladding once ruled, the mix now creates rhythm between the floor-to-ceiling glass bays. Stone breaks the long runs, and the white bands underline those strong horizontals and the LED-trimmed eaves.
Glass railings stay invisible so the white-and-stone duet can hog the spotlight—tuxedo up top, hiking boots at the edges.
Table of Contents




