Last updated on · ⓘ How we make our floor plans

This design is a compact two-story modern cabin with a bold A-frame character and a crisp, efficient layout. It is small in footprint, but very assured in form.

The facade pairs contemporary cabin architecture with a sculptural asymmetrical roofline. Vertical stained timber clads the tall front volume, while dark siding wraps the lower wing for contrast. Large glazed openings sharpen the front elevation and pull in light with ease. The roofing appears to be dark metal, using one steep plane and one flatter section for a clean, graphic profile.

These floor plan drafts are available for download as a printable PDF. They are practical for review, easy to print, and quite handy when the furniture daydreaming begins.
Key Specs
- Total area: Approx. 740 sq ft
- Bedrooms: 1
- Bathrooms: 1
- Floors: 2
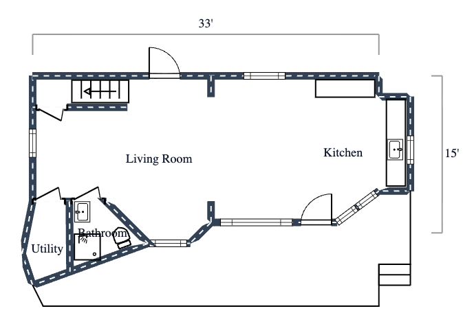
Main Floor

The main floor is the shared living zone. It spans about 33′ by 15′, which gives it an overall area of roughly 500 square feet.
The layout is open and compact. The living room occupies most of the plan. The kitchen sits to the right side. The bathroom and utility room are tucked neatly into the lower-left corner. Stairs are placed near the upper-left. Small plan, big discipline.
- Living Room: Large central living space.
- Kitchen: Open kitchen on the right.
- Bathroom: Compact bath near the utility room.
- Utility: Separate service room at the left rear corner.
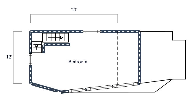
Upper Floor

The upper floor is simple and loft-like. It spans about 20′ by 12′, for an overall area of roughly 240 square feet.
This level is dedicated almost entirely to the bedroom. The stair arrives at the left side and opens directly into the room. There is very little circulation space, which is a polite way of saying no square foot is loafing.
- Bedroom: One large bedroom occupying nearly the full upper level.
Pin this for later:

We have more facade options of this design:
Mint Green and Yellow Siding

The facade now wears mint‑green siding with yellow accents, flipping the vibe from muted modern to zippy popsicle. Vertical planks in mint elongate the tall triangular wing and the sloped window wall, while yellow traces the door and trims like a highlighter, snapping the lines into focus.
This fresh palette recasts the massing: the asymmetrical shed roof reads lighter, the glazed corner feels bolder, and the entry plane pops. Against the dark deck, the mint‑and‑yellow combo crisps the stepped edges and frames, making the compact cabin look sharper, sunnier, and just a tad sherbet.
Black Siding with White Trim

Switched to black siding with white accents, the facade snaps into high-contrast mode. Vertical boards go inky; corner trims, fascia, and window frames turn crisp.
The sloped wedge roof and tall triangular fin read cleaner and punchier. A tuxedo for a tiny rebel.
White outlines now trace the glazing bands, door, and clerestory, amplifying the long horizontal and the steep diagonal. Black cladding makes the porch recess and overhangs feel deeper, while the projecting window bay looks razor-cut.
Frames around the asymmetrical windows become graphic, like inked edges. Even the deck step reads as an underline to the whole composition.
Deep Blue and Grey Siding

Change front and center: the facade now wears deep blue siding with grey accents. The deep blue boards sheath the tall triangular volume and sloped edge, while cool grey cladding tightens the flat‑roofed side wing and entry surround.
This combo sharpens the silhouette and makes the warm window frames pop like exclamation marks. Think navy blazer with grey slacks—crisp, modern, a tad smug—with cleaner corner reveals, bolder glazing bands, and a tidier break between the two masses.
Red Siding with Bronze Accents

The facade now swaps to red siding with bronze accents, and the whole composition tightens. The skewed prow reads like a crimson keel, while bronze inlays ride its vertical seams and glint along the sloped clerestory band.
The glazing feels bolder against the saturated field—like sunglasses with a confident rim.
Bronze wraps the roof edge, door mullions, and beam cuffs, sharpening every line and warming the overhangs. Red boards pull the eye up the tall triangle and across the low wing, stitching the forms so the deck sits like a deliberate stage.
Compact footprint, big swagger—sunset paint in a matte tux.
Forest Green Siding with Black Trim

Switching the siding to forest green with black accents transforms the facade from friendly cabin to stealth sculpture. Vertical green boards amplify the tall, skewed A-frame, pulling the eye up that dramatic diagonal.
Black fascia, window frames, and the stretched eave carve razor-thin shadow lines, turning the clerestory band into a sleek visor of glass.
The lower wing now wears black, visually recessing into the dark deck so the forest‑green core reads like a sculpted prow.
That contrast tightens everything: the square window becomes a crisp cutout, the door almost disappears, and the roof edge feels longer and leaner. It’s camouflage with cheekbones—woodsy, sharp, and just a bit ninja.
Table of Contents




