Last updated on · ⓘ How we make our floor plans

This design is a two-story modern house plan with 2,040 sq ft in total, an open main floor, and four bedrooms on the upper level.

The facade is clean and contemporary. Strong horizontal rooflines, broad windows, and a dark modern garage door shape the front elevation. Warm wood-toned siding pairs with dark accent cladding for a sharp contrast. The roof is low-pitched with wide overhangs, giving the house a sleek, composed profile.
These floor plan drafts are available for download as a printable PDF. Handy for printing, marking up, and settling layout opinions before anyone gets too dramatic.
- Total area: 2,040 sq ft
- Bedrooms: 4
- Bathrooms: 3
- Floors: 2
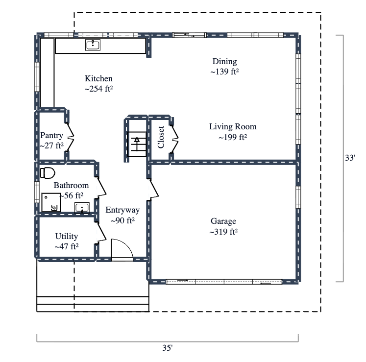
Main Floor

The main floor covers 1,110 sq ft. The layout places the garage to one side, the entry and service rooms near the front, and the main living spaces across the rest of the floor. The stair sits near the center, which keeps circulation simple and neat.
- Garage: 320 sq ft
- Living Room: 200 sq ft
- Kitchen: 255 sq ft
- Dining: 140 sq ft
- Entryway: 91 sq ft
- Bathroom: 57 sq ft
- Utility: 48 sq ft
- Pantry: 28 sq ft
The kitchen, dining, and living room form the social heart of the floor. The pantry and utility room keep the practical bits tucked close by. Sensible planning. Very little fuss.
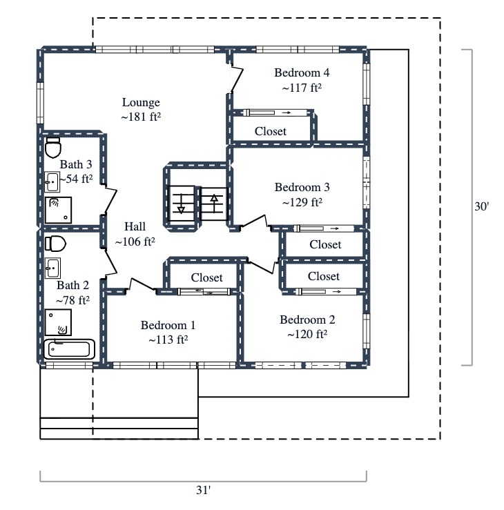
Upper Floor

The upper floor totals 930 sq ft. The stair leads to a central hall, with four bedrooms arranged around it. A lounge adds flexible shared space, so this level is more than a hallway with ambition.
- Lounge: 181 sq ft
- Hall: 106 sq ft
- Bedroom 1: 113 sq ft
- Bedroom 2: 120 sq ft
- Bedroom 3: 129 sq ft
- Bedroom 4: 117 sq ft
- Bath 2: 78 sq ft
- Bath 3: 54 sq ft
The bedroom sizes are well balanced, and the two upper bathrooms help the morning routine move with less chaos. Closets are also shown throughout the plan, adding useful storage where it counts.
We have more facade options of this design:
Mint Green and Yellow Siding

The big change is the new mint green and yellow siding, and it totally flips the facade’s mood. The mint green wraps the clean, boxy volumes with a fresh mid-century zing, while the yellow panels and entry add a sunny pop that refuses to whisper.
Those color swaps make the flat roof, wide eaves, and long black-framed windows feel even sharper. Against the dark trim and black garage door, the facade reads crisp, playful, and a little cheeky—like modernism decided to have better snacks.
Beige Stone and White Board Siding

The big change is the new siding mix: beige stone across the lower facade and crisp white board siding above. It sharpens the house instantly, giving the flat-roof form a cleaner, brighter face while keeping a grounded, sturdy base—like the house put on a neat jacket and solid boots.
That update also makes the wide eaves, long window bands, and slim white trim read more clearly across the front. The warm wood entry door pops harder now, and the garage feels more integrated instead of bulky, so the whole facade lands with a tidy mid-century snap.
Red Brick and Beige Wood Board Siding

The big change is the new siding mix: red brick now wraps the lower facade, while beige wood boards brighten the upper level. That swap gives the house a sharper split, grounding the base and making the top feel lighter under the flat roof’s long, hovering eaves—very composed, a little smug.
With that update, the dark window frames and broad garage door stand out more crisply against the warmer materials. The horizontal wood boards echo the house’s low, stretched profile, while the brick adds texture and a sturdier street face; together, they make the entry look more intentional and the whole facade more dressed up, without wearing a tux.
Urbane Bronze Siding

The big change is the siding: it’s now an urbane bronze, and that one move gives the facade a sleeker, moodier punch. The horizontal cladding sharpens the long, low lines of the flat-roof form, while the wide eaves feel even more graphic against the darker skin—very composed, a little smug, in a good way.
That bronze finish also makes the black window frames, recessed entry, and broad garage door read as one crisp modern set. The upper band of glass stands out more cleanly, the facade feels tighter and more tailored, and the whole front elevation lands somewhere between refined and quietly bossy.
White and Black Siding

The big change is the siding: it now flips to a sharp white-and-black palette, and the whole facade suddenly looks much more graphic. White panels brighten the upper and lower volumes, while black bands outline the flat roof, wide eaves, and long window runs with a cool, tailored snap—like the house put on a tux and meant it.
That contrast also reshapes how the front reads. The black framing makes the horizontal windows and garage door feel sleeker, the white surfaces keep the mass crisp and light, and the warm wood entry now pops even more against the monochrome shell.
Even the stone base feels cleaner beside it. Minimalist, punchy, and just a little smug—in a good way.
Pin this for later:


Table of Contents




